Vuokrataan - Nurmijärvi
Otsotie 4, 01900 Nurmijärvi #10821192
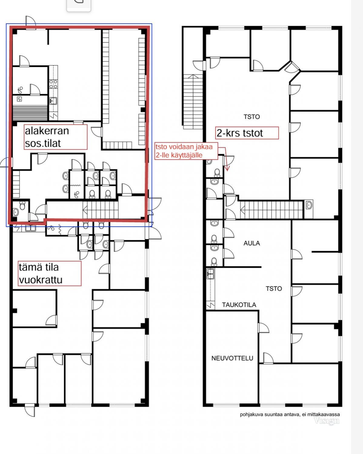
Siistikuntoinen 2. krs toimisto-, työtilaa. Omat wc:t ja keittiö. Voidaan myös jakaa kahdelle käyttäjälle. Parkkipaikkoja on.
Osoite
Otsotie 4, 01900 Nurmijärvi
Vapautuu
Kysy
Huoneiden lukumäärä
1
Energiatehokkuusluokka
Ei lain edellyttämää energiatodistusta
Ota yhteyttä
RHG Real Estate
Hämeenkatu 2 B20, 20500 Turku
Näytä puhelinnumero
020 734 4020
Risto Taimela
Näytä puhelinnumero
0400 674 900
Pyydä lisätietoa
