Vuokrataan toimistotilat - Helsinki
Valimotie 27, Pitäjänmäki, 00380 Helsinki #10821172
Valoisaa ja siistiä toimistotilaa juna-aseman tuntumassa. Avotilasta voi muokata käyttötarkoitusta parhaiten palvelevan tilan.
Osoite
Valimotie 27, 00380 Helsinki
Tilatyyppi
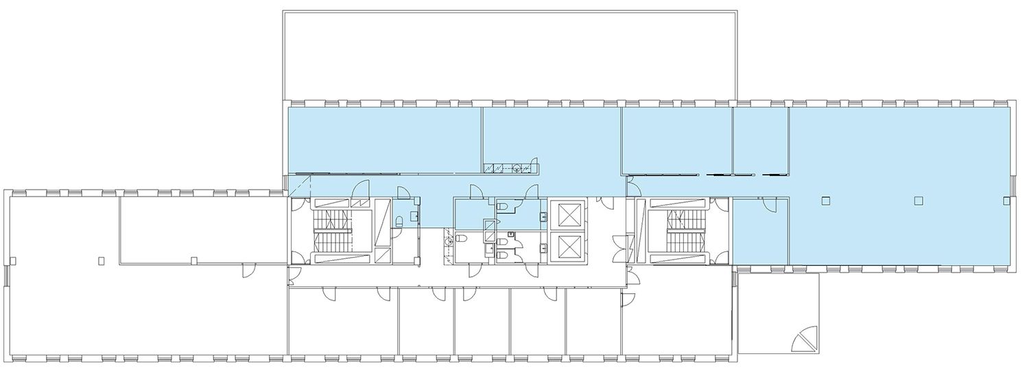
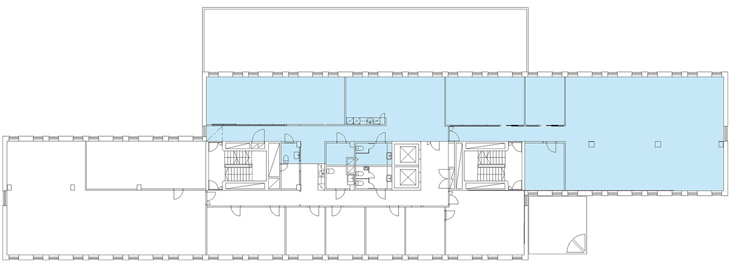
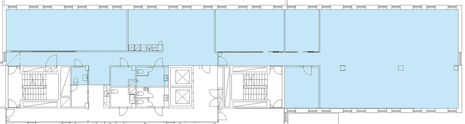
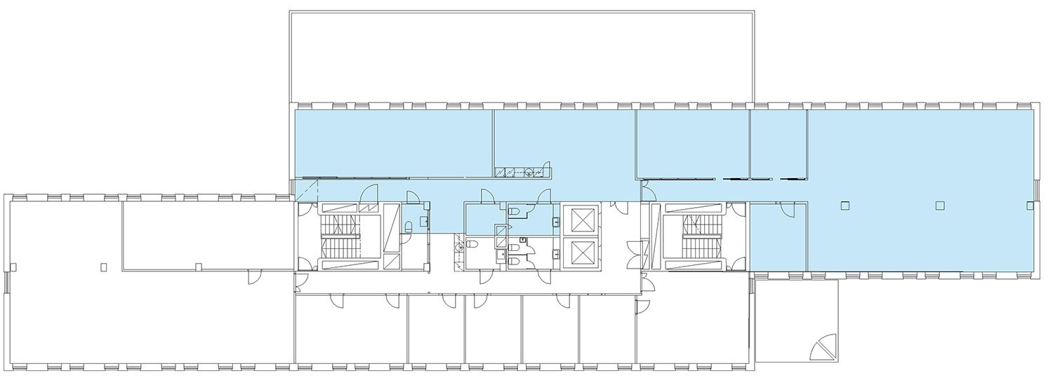
Toimistotilaa
380 m2
Pohjapiirros
Kiinteistö
Tässä kuusikerroksisessa toimistorakennuksessa on valoisat avotilat.
Lounasta voi nauttia oman talon lounasravintolassa tai lähialueen muissa ravintoloissa. Lisäksi läheisessä marketissa voi kotimatkalla hoitaa ruokaostokset.
Työntekijöiden jokapäiväinen arki helpottuu myös hyvien liikenneyhteyksien ansiosta. Valimon juna-asema on parin minuutin kävelymatkan päässä ja Vihdintietä kulkee puolestaan lukuisat bussit.
Kiinteistölle on myönnetty BREEAM In-Use Excellent -tason ympäristösertifikaatti. BREEAM (Building Research Establishment Environmental Assessment Method) on kansainvälinen rakennusten ympäristöluokitusjärjestelmä, joka tähtää rakennuksen käytön ympäristövaikutusten vähentämiseen sekä terveellisempien työympäristöjen kehittämiseen.
Lounasta voi nauttia oman talon lounasravintolassa tai lähialueen muissa ravintoloissa. Lisäksi läheisessä marketissa voi kotimatkalla hoitaa ruokaostokset.
Työntekijöiden jokapäiväinen arki helpottuu myös hyvien liikenneyhteyksien ansiosta. Valimon juna-asema on parin minuutin kävelymatkan päässä ja Vihdintietä kulkee puolestaan lukuisat bussit.
Kiinteistölle on myönnetty BREEAM In-Use Excellent -tason ympäristösertifikaatti. BREEAM (Building Research Establishment Environmental Assessment Method) on kansainvälinen rakennusten ympäristöluokitusjärjestelmä, joka tähtää rakennuksen käytön ympäristövaikutusten vähentämiseen sekä terveellisempien työympäristöjen kehittämiseen.
Sijainti
Kiinteistö sijaitsee hyvien liikenneyhteyksien varrella Pitäjänmäessä, aivan Valimon juna-aseman vieressä.
Pysäköinti
Hyvät paikoitusmahdollisuudet
Palvelut
Merkkituotteiden outlet-myymälä, ravintolapalveluita, vähittäiskauppa, autopesula.
Kulkuyhteydet
Lähimmälle bussipysäkille 100 m
Lähimmälle juna-asemalle 200 m
Lentokentälle 15 min
Lähimmälle juna-asemalle 200 m
Lentokentälle 15 min
Vapautuu
Kysy
Rakennusvuosi
1983
Kerros
4
Energiatehokkuusluokka
C2018
Ympäristöluokitus
BREEAM In-Use Excellent,RESB Global Sector Leader 2025
Liitetiedostot
Ota yhteyttä
Sponda Oy
Yrjönkatu 29C, 00100 Helsinki
Näytä puhelinnumero
020 43131
Anna Puhtila
Senior Manager, Value Add Portfolio
Näytä puhelinnumero
+358 50 407 9601
Sponda Oy
https://www.sponda.fiPyydä lisätietoa
