Vuokrataan toimistotilat - Oulu
Kirkkokatu 27, Keskusta, 90100 Oulu #10821168
Osoite
Kirkkokatu 27, 90100 Oulu
Tilatyyppi
Toimistotilaa
49 m2
Vuokra
1000
Muuta
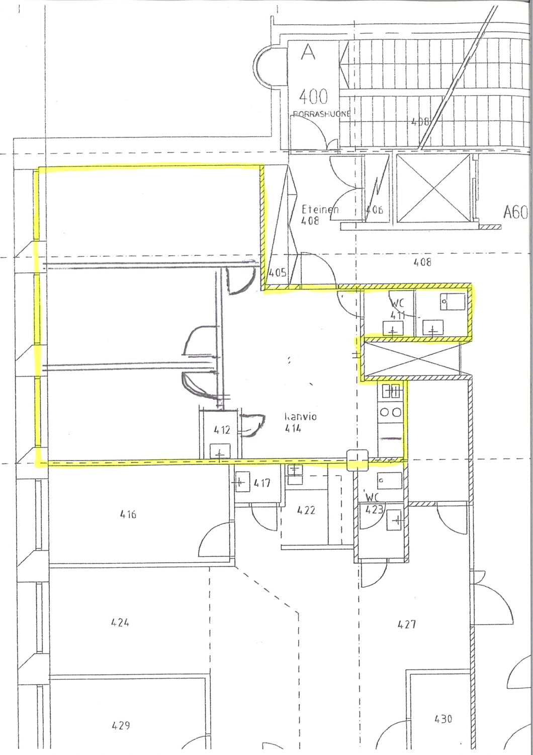
Vuokrataan Kirkkokatu 27 osoitteesta 4. kerroksen siistikuntoinen toimistohuoneisto.
Osoite Kirkkokatu 27 A 41.
Huoneiston koko on 49 m2.
Siinä on 3 huonetta ja aulassa on keittiövarustus (jääkaappi, astianpesukone, mikro sekä kaapistot). Lisäksi wc ja erillinen siivouskomero.
Tilan ikkunat ovat Rotuaarille.
Rakennuksessa on hissi, koneellinen tulo- ja poistoilmanvaihto tuloilman jäähdytyksellä. Alaovella on ovisummeri.
Huoneisto on heti vapaa
Vuokra 1000,00 e/kk (alv 0, ei lisätä).
Vuokra sidotaan elinkustannusindeksiin, minimikorotus 3% vuodessa.
Mahdollista vuokrata autopaikka rakennuksen alla olevassa parkkihallista, 120,00 e/ kk (alv 0)
Vesimaksu taloyhtiölle (tällähetkellä n. 13,00 €/kk) ja käyttösähkö kulutuksen mukaan omalla sähkösopimuksella.
Osoite Kirkkokatu 27 A 41.
Huoneiston koko on 49 m2.
Siinä on 3 huonetta ja aulassa on keittiövarustus (jääkaappi, astianpesukone, mikro sekä kaapistot). Lisäksi wc ja erillinen siivouskomero.
Tilan ikkunat ovat Rotuaarille.
Rakennuksessa on hissi, koneellinen tulo- ja poistoilmanvaihto tuloilman jäähdytyksellä. Alaovella on ovisummeri.
Huoneisto on heti vapaa
Vuokra 1000,00 e/kk (alv 0, ei lisätä).
Vuokra sidotaan elinkustannusindeksiin, minimikorotus 3% vuodessa.
Mahdollista vuokrata autopaikka rakennuksen alla olevassa parkkihallista, 120,00 e/ kk (alv 0)
Vesimaksu taloyhtiölle (tällähetkellä n. 13,00 €/kk) ja käyttösähkö kulutuksen mukaan omalla sähkösopimuksella.
Vapautuu
Kysy
Kerros
4
Ota yhteyttä
Catella Property Oy
Kirkkokatu 6, 5. krs, 90100 OULU
Näytä puhelinnumero
010 5220 100
Pekka Laurila-Harju
Näytä puhelinnumero
010 5220 603
Pyydä lisätietoa
