Vuokrataan toimistotilat - Helsinki
Runeberginkatu 5, Kamppi, 00100 Helsinki #10820914
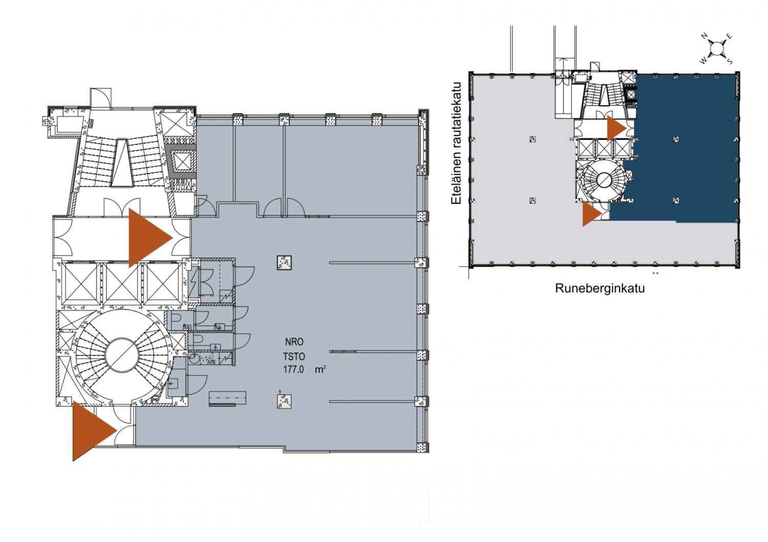
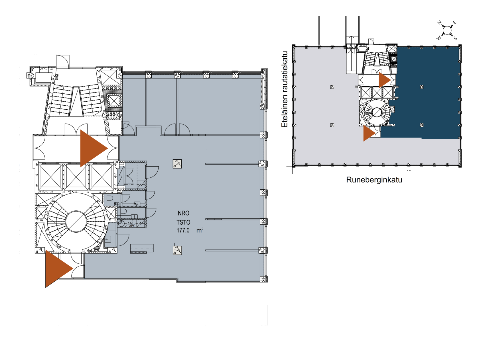
Siisti 177m2 toimisto Kampin Autotalosta.
Osoite
Runeberginkatu 5, 00100 Helsinki
Tilatyyppi
Toimistotilaa
177 m2
Pohjapiirros
Kiinteistö
Hyvällä paikalla Kampin Autotalon korttelissa sijaitseva siisti toimisto.
Paljon avo- ja neuvottelutilaa.
- Toimistokerroksista on hissiyhteys autohalliin.
- Pyöräilijöille pyöräparkit ja suihkutilat.
- Kiinteistössä on jäähdytys puhallinkonvektoreilla.
- Kiinteistössä on tehty julkisivun ja yleisten tilojen kunnostustöitä kunnioittaen talon henkeä ja arkkitehtuuria.
Paljon avo- ja neuvottelutilaa.
- Toimistokerroksista on hissiyhteys autohalliin.
- Pyöräilijöille pyöräparkit ja suihkutilat.
- Kiinteistössä on jäähdytys puhallinkonvektoreilla.
- Kiinteistössä on tehty julkisivun ja yleisten tilojen kunnostustöitä kunnioittaen talon henkeä ja arkkitehtuuria.
Pysäköinti
Kiinteistössä oma parkkihalli.
Palvelut
Kampin keskuksen monipuoliset palvelut. Kiinteistössä on autohalli, pyöräparkki suihkuineen ja ravintolamaailma.
Kulkuyhteydet
Kampin metroasema ja linja-autoasema aivan vieressä.
Metroasema 100 m, Raitiovaunupysäkki alle 100 m, Bussipysäkki alle 100 m, Juna-asema 700 m, Lentoasema 16,6 km.
Metroasema 100 m, Raitiovaunupysäkki alle 100 m, Bussipysäkki alle 100 m, Juna-asema 700 m, Lentoasema 16,6 km.
Vapautuu
Heti
Rakennusvuosi
1958
Saneerausvuosi
2016
Kerros
5
Energiatehokkuusluokka
E2007
Näkyvällä paikalla
Hissi
Ota yhteyttä
ScanReal Oy LKV
Opus Business Park
Hitsaajankatu 24
00810 Helsinki
info@scanreal.fi
Puh:
Näytä puhelinnumero
020 730 8830
Sopivat toimitilat yhdellä otolla!
Kartoitamme toimitilatarpeesi ja etsimme yrityksellesi parhaiten sopivat vapaat toimitilat. Koska vuokranantajat maksavat palvelumme, on tämä yrityksellesi veloituksetonta.
OTA YHTEYTTÄ - SOVI NÄYTTÖ!
Kaikki kohteemme eivät ole netissä, kerro tilatarpeesi niin kartoitamme vaihtoehdot.
Palvelumme on tilanhakijalle ilmainen
Pyydä lisätietoa
