Vuokrataan toimistotilat - Espoo
Keilaranta 1 A, Keilaniemi, 02150 Espoo #10820893
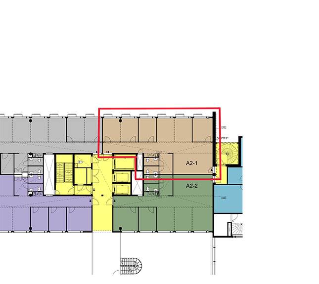
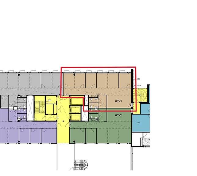
Pohjakuvat ilmoituksesta ovat 188m2 9.krs ja 368,5m2 2. krs.
Osoite
Keilaranta 1 A, 02150 Espoo
Tilatyyppi
Toimistotilaa
179 - 368,5 m2
Tilajako
Vapaat tilat: 180,5m2, 188m2, 368,5m2. Lisätietoa kysyttäessä.
Pohjapiirros
Kiinteistö
Keilaranta 1 tarjoaa unohtumatonta sijaintia Keilaniemen metroaseman yläpuolella, meren rannalla. Tämä platinatason kiinteistö on toteutettu kestävän kehityksen periaatteella, ja sen uudisosalle on myönnetty LEED®Platina-ympäristösertifikaatti.
Kiinteistössä on erinomaiset palvelut, kuten neuvotteluhuoneiden ja kuntosalin käyttömahdollisuus sekä lounasravintola ja cateringpalvelut. Lisäksi tarjolla on kaksi erikseen vuokrattavaa sauna-/edustustilaa, jotka luovat erinomaiset puitteet kokouksille ja yritystapahtumille.
Keilaranta 1:n toimistohuoneistot ovat joustavasti muunneltavissa ja niiden pinta-alat vaihtelevat 117 neliömetristä 550 neliömetriin. Pienempiä tiloja on myös mahdollista vuokrata kiinteistön toimistohotellista. Talon ensimmäisestä kerroksesta löytyy laaja neuvotteluhuonekeskus, jossa on yhteensä 23 neuvottelutilaa, jotka sopivat 6–200 hengen tilaisuuksiin.
Erinomaisella sijainnilla Kehä 1:n ja Länsiväylän vieressä on hyvät julkisen liikenteen yhteydet, ja alueella on runsaasti pysäköintitilaa henkilökunnan käyttöön. Keilaranta 1 tarjoaa siis täydelliset puitteet modernille liiketoiminnalle ja erinomaiselle saavutettavuudelle.
Kiinteistössä on erinomaiset palvelut, kuten neuvotteluhuoneiden ja kuntosalin käyttömahdollisuus sekä lounasravintola ja cateringpalvelut. Lisäksi tarjolla on kaksi erikseen vuokrattavaa sauna-/edustustilaa, jotka luovat erinomaiset puitteet kokouksille ja yritystapahtumille.
Keilaranta 1:n toimistohuoneistot ovat joustavasti muunneltavissa ja niiden pinta-alat vaihtelevat 117 neliömetristä 550 neliömetriin. Pienempiä tiloja on myös mahdollista vuokrata kiinteistön toimistohotellista. Talon ensimmäisestä kerroksesta löytyy laaja neuvotteluhuonekeskus, jossa on yhteensä 23 neuvottelutilaa, jotka sopivat 6–200 hengen tilaisuuksiin.
Erinomaisella sijainnilla Kehä 1:n ja Länsiväylän vieressä on hyvät julkisen liikenteen yhteydet, ja alueella on runsaasti pysäköintitilaa henkilökunnan käyttöön. Keilaranta 1 tarjoaa siis täydelliset puitteet modernille liiketoiminnalle ja erinomaiselle saavutettavuudelle.
Vapautuu
Heti
Energiatehokkuusluokka
A2018
Ota yhteyttä
Arvo Premises Oy
Joakim Kukkonen
Osakas, Toimitilavälittäjä
Näytä puhelinnumero
040 555 8106
Seppo Pakarinen
Osakas, Kiinteistönvälittäjä. LKV, YKV, AKA
Näytä puhelinnumero
040-703 8000
Pyydä lisätietoa
