Vuokrataan liiketilat - Helsinki
Ruoholahdenkatu 8, Ruoholahti, 00180 Helsinki #10820887
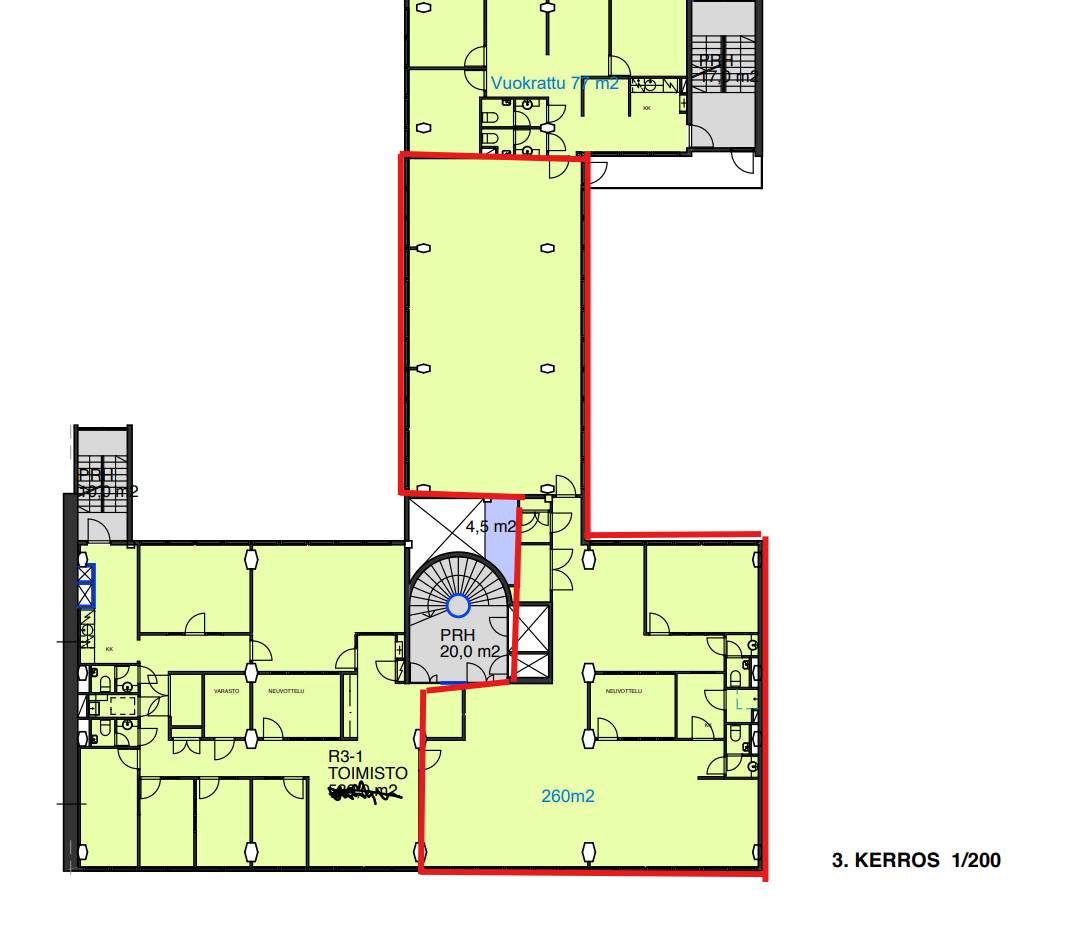
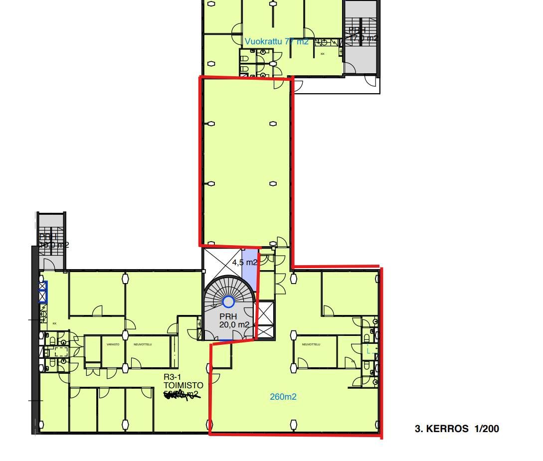
Vapaana kaksi tilaa 252m2 ja 260m2 liiketilat.
Osoite
Ruoholahdenkatu 8, 00180 Helsinki
Tilatyyppi
Liiketilaa
250 m2
Pohjapiirros
Kiinteistö
Kiinteistö Oy Ruoholahdenkatu 8 tarjoaa erinomaisia liike- ja toimistotiloja Helsingin ydinkeskustan tuntumassa. Rakennus, joka on valmistunut vuosina 1956 ja 1964, on kokenut kattavan peruskorjauksen vuonna 2005, minkä myötä tilat ovat modernisoituneet ja mukautettavissa monenlaisiin käyttötarkoituksiin, kuten avokonttoreiksi tai huonetoimistoiksi.
Tilojen sisäilmasto on kunnossa, sillä rakennuksessa on koneellinen ilmanvaihto ja jäähdytys. Tämä takaa miellyttävän työympäristön koko vuoden ajan. Tiloja on myös helppo muokata tarpeiden mukaan.
Ruoholahdenkatu 8 sijaitsee hyvien liikenneyhteyksien varrella, vain lyhyen kävelymatkan päässä Kampin metroasemalta. Lisäksi rakennuksen sisäpihalla ja kellarissa on yhteensä noin 50 pysäköintipaikkaa, mikä helpottaa työmatkustamista.
Tämä kiinteistö tarjoaa erinomaiset puitteet yrityksille, jotka arvostavat hyvää sijaintia ja monikäyttöisiä, tehokkaita toimitiloja.
Tilojen sisäilmasto on kunnossa, sillä rakennuksessa on koneellinen ilmanvaihto ja jäähdytys. Tämä takaa miellyttävän työympäristön koko vuoden ajan. Tiloja on myös helppo muokata tarpeiden mukaan.
Ruoholahdenkatu 8 sijaitsee hyvien liikenneyhteyksien varrella, vain lyhyen kävelymatkan päässä Kampin metroasemalta. Lisäksi rakennuksen sisäpihalla ja kellarissa on yhteensä noin 50 pysäköintipaikkaa, mikä helpottaa työmatkustamista.
Tämä kiinteistö tarjoaa erinomaiset puitteet yrityksille, jotka arvostavat hyvää sijaintia ja monikäyttöisiä, tehokkaita toimitiloja.
Vapautuu
Heti
Katutasossa
Ota yhteyttä
Arvo Premises Oy
Joakim Kukkonen
Osakas, Toimitilavälittäjä
Näytä puhelinnumero
040 555 8106
Seppo Pakarinen
Osakas, Kiinteistönvälittäjä. LKV, YKV, AKA
Näytä puhelinnumero
040-703 8000
Pyydä lisätietoa
