Vuokrataan toimistotilat - Helsinki
Hämäläisten talo, Urho Kekkosen katu 4-6, Kamppi, 00100 Helsinki #10820870
Siisti 166 m² toimisto Kampista, Hämäläisten talosta.
Osoite
Urho Kekkosen katu 4-6, 00100 Helsinki
Tilatyyppi
Toimistotilaa
166 m2
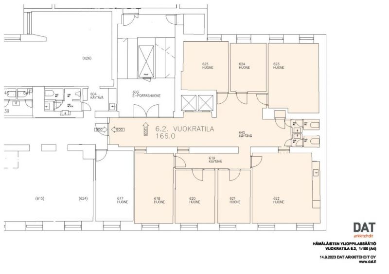
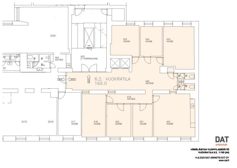
Pohjapiirros
Kiinteistö
Kuudennen kerroksen peruskuntoinen toimisto jossa 6 työhuonetta, tilava taukokeittiö ja wc-tilat. Tiloissa on koneellinen ilmanvaihto, huonekohtainen kaukojäähdytys ja kuituyhteys. Toimistoa on mahdollista remontoida.
Hämäläisten talo on Hämäläisten ylioppilassäätiön omistama punatiilinen rakennus Urho Kekkosen kadulla, aivan Helsingin ydinkeskustassa, Kampin kauppakeskusta vastapäätä. Suurin osa talosta on vuokrattu toimistotiloiksi ja talon katutaso liike- ja ravintolakäyttöön. Hämäläis-Osakunnan oleskelutilat sijaitsevat D-rapun neljässä eri kerroksessa ja kirjasto sijaitsee A-rapun ylimmässä kerroksessa.
Kiinteistön lähellä useat keskustan kauppakeskukset ja muut palvelut.
Hämäläisten talo on Hämäläisten ylioppilassäätiön omistama punatiilinen rakennus Urho Kekkosen kadulla, aivan Helsingin ydinkeskustassa, Kampin kauppakeskusta vastapäätä. Suurin osa talosta on vuokrattu toimistotiloiksi ja talon katutaso liike- ja ravintolakäyttöön. Hämäläis-Osakunnan oleskelutilat sijaitsevat D-rapun neljässä eri kerroksessa ja kirjasto sijaitsee A-rapun ylimmässä kerroksessa.
Kiinteistön lähellä useat keskustan kauppakeskukset ja muut palvelut.
Pysäköinti
Pysäköintipaikkoja voi vuokrata autohallista tai sisäpihalta
Palvelut
Helsingin keskustan ja Kampin monipuoliset palvelut kävelyetäisyydellä. Kiinteistössä myös ravintoloita ja Tavastia-klubi.
Kulkuyhteydet
Kampin metroasema, bussit ja ratikat
Vapautuu
Heti
Kerros
6
Energiatehokkuusluokka
Ei lain edellyttämää energiatodistusta
Hissi
Ota yhteyttä
ScanReal Oy LKV
Opus Business Park
Hitsaajankatu 24
00810 Helsinki
info@scanreal.fi
Puh:
Näytä puhelinnumero
020 730 8830
Sopivat toimitilat yhdellä otolla!
Kartoitamme toimitilatarpeesi ja etsimme yrityksellesi parhaiten sopivat vapaat toimitilat. Koska vuokranantajat maksavat palvelumme, on tämä yrityksellesi veloituksetonta.
OTA YHTEYTTÄ - SOVI NÄYTTÖ!
Kaikki kohteemme eivät ole netissä, kerro tilatarpeesi niin kartoitamme vaihtoehdot.
Palvelumme on tilanhakijalle ilmainen
Pyydä lisätietoa
