Vuokrataan toimistotilat - Helsinki
Erottajankatu 15-17, Keskusta, 00130 Helsinki #10820806
Vuokrattavana upeaa, tyylikästä ja modernia toimistotilaa keskustan arvokiinteistöstä. Ohessa kuvia kiinteistön tiloista.
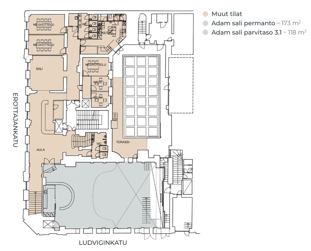
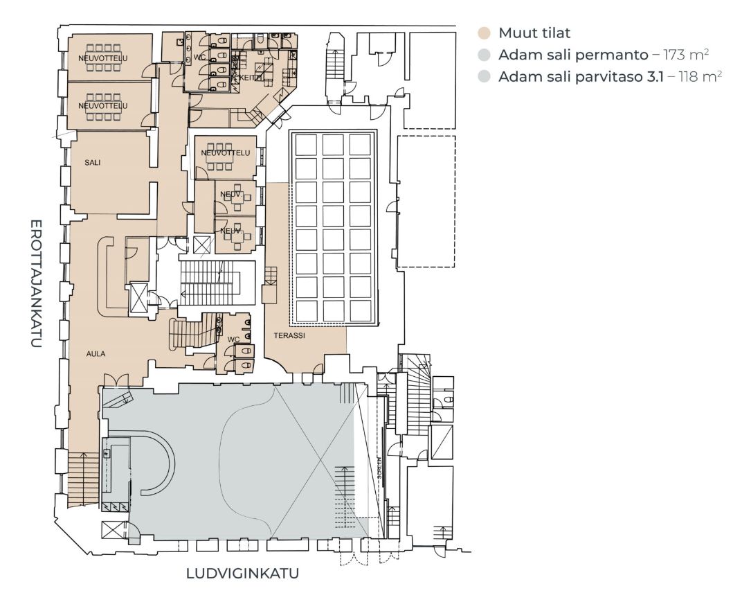
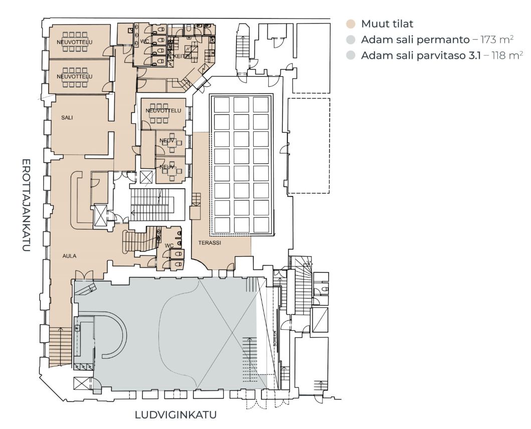
Arvokiinteistö Erottajan ja Ludwiginkadun kulmassa. Rakennuksen omaleimaisuuden luo kaunis julkisivu ja historiallinen Adams - elokuvasali kiinteistön toisessa kerroksessa.
Kiinteistön pääsisäänkäynti on näyttävästi talon kulmassa. Toisessa kerroksessa on vastaanottoaula, neuvottelukeskus ja Adams- sali, joka voi palvella kahvilana, lounasravintolana tai business- loungena suuremmissa tilaisuuksissa.
Lisätiedot 020 7290 710 ja lisää kohteita premises.fi.
Kohteella ei ole lain edellyttämää energiatodistusta tai energialuokka ei tiedossa.Kerros: 2
Raitiovaunu: 60m
Rautatieasema: 500m
Linja-autoasema: 850m
Metro: 450m
CRE PREMISES
Puh. Näytä puhelinnumero 020 7290 710
Vantaankoskentie 14
01670 VANTAA
