Vuokrataan toimistotilat - Helsinki
Erottajankatu 5, Kaartinkaupunki, Helsinki #10820782
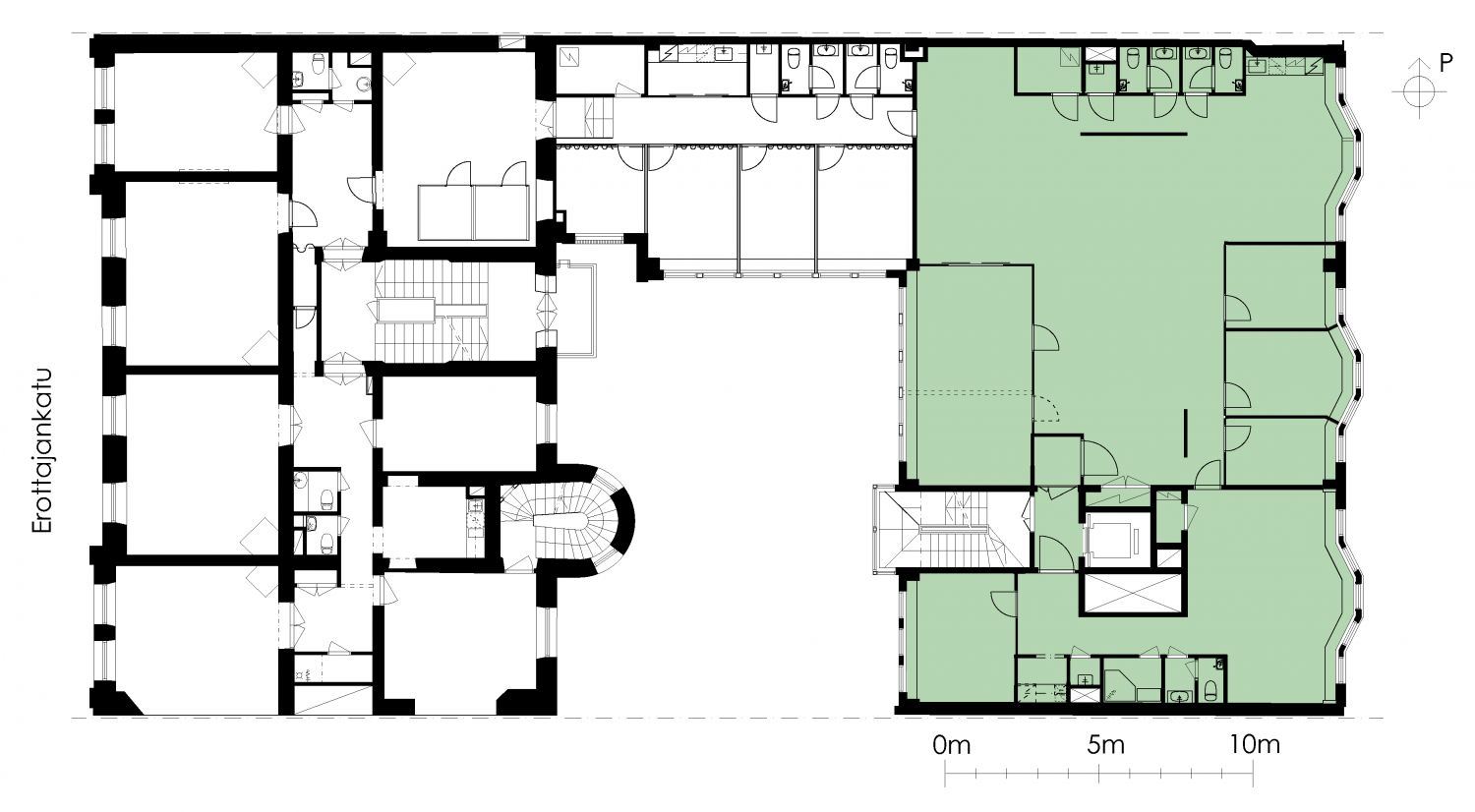
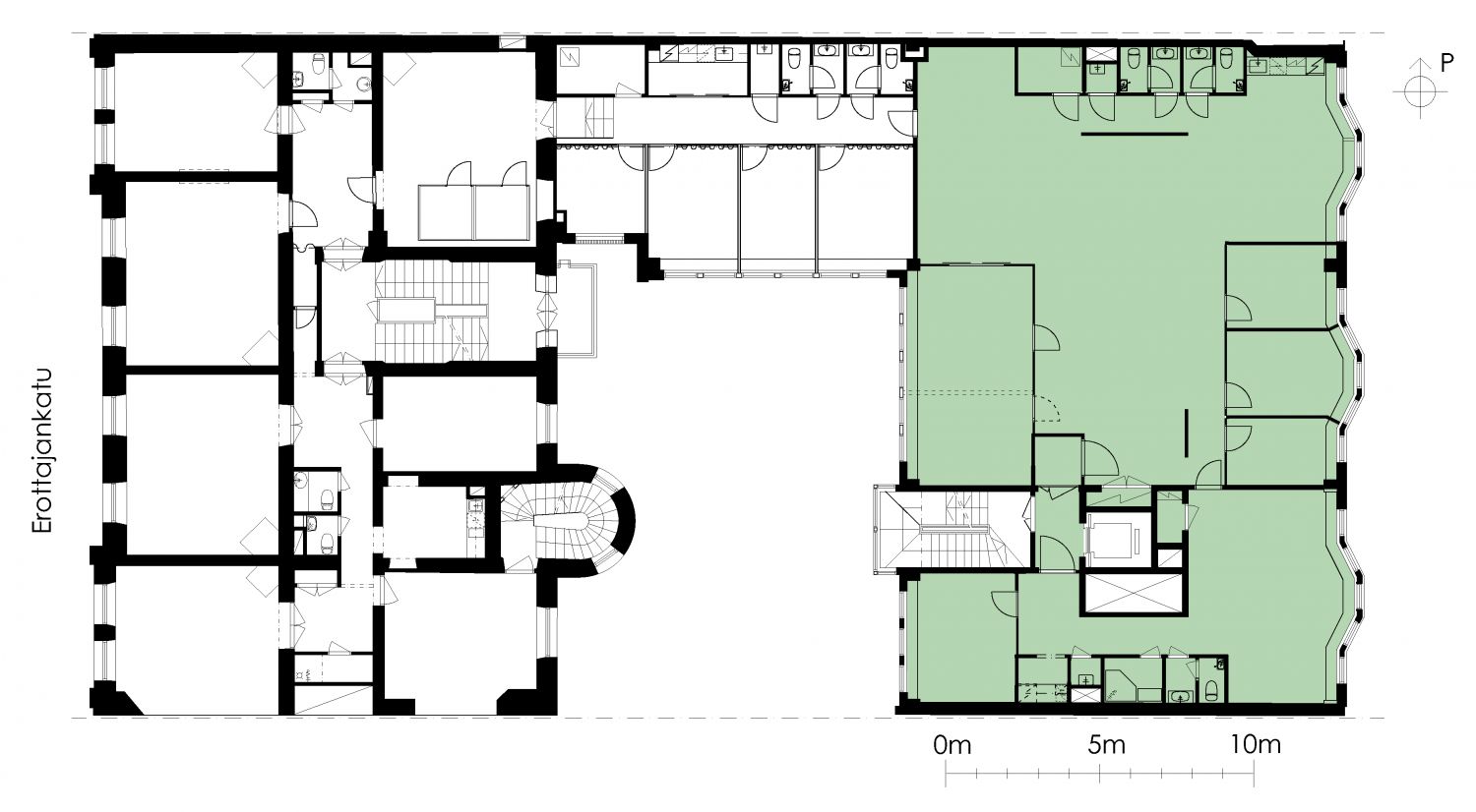
Siisti ja valoisa toimisto, jossa sekä avotoimistoa että huoneita.
Osoite
Erottajankatu 5, Helsinki
Tilatyyppi
Toimistotilaa
260 m2
Pohjapiirros
Kiinteistö
Historiallista arvokkuutta henkivä toimisto- ja liiketilakiinteistö vehreällä paikalla Helsingin ydinkeskustassa.
Kiinteistöstä on näkymät vieressä sijaitsevaan vehreään Diana-puistoon ja kiinteistön sisäpihalla sijaitsee Diana Auditorio.
Iso Roobertinkadun ravintolakeskittymän palvelut löytyvät läheltä ja Punavuoren trendikkäät kaupat sekä keskustan kaikki palvelut kävelyetäisyyden päässä.
Kiinteistölle on myönnetty BREEAM In-Use Excellent -tason ympäristösertifikaatti. BREEAM (Building Research Establishment Environmental Assessment Method) on kansainvälinen rakennusten ympäristöluokitusjärjestelmä, joka tähtää rakennuksen käytön ympäristövaikutusten vähentämiseen sekä terveellisempien työympäristöjen kehittämiseen.
Kiinteistöstä on näkymät vieressä sijaitsevaan vehreään Diana-puistoon ja kiinteistön sisäpihalla sijaitsee Diana Auditorio.
Iso Roobertinkadun ravintolakeskittymän palvelut löytyvät läheltä ja Punavuoren trendikkäät kaupat sekä keskustan kaikki palvelut kävelyetäisyyden päässä.
Kiinteistölle on myönnetty BREEAM In-Use Excellent -tason ympäristösertifikaatti. BREEAM (Building Research Establishment Environmental Assessment Method) on kansainvälinen rakennusten ympäristöluokitusjärjestelmä, joka tähtää rakennuksen käytön ympäristövaikutusten vähentämiseen sekä terveellisempien työympäristöjen kehittämiseen.
Sijainti
Kiinteistö on hyvien kulkuyhteyksien varrella, sillä aivan rakennuksen edessä ovat sekä raitiovaunu- että bussipysäkit.
Pysäköinti
Oma parkkihalli ja Aimo Park Erottaja
Palvelut
Kaikki keskustan palvelut sijaitsevat kävelyetäisyydellä.
Kulkuyhteydet
Lähimmälle bussipysäkille 50 m
Lähimmälle juna-asemalle 750 m
Lähimmälle metroasemalle 800 m
Lähimmälle raitiovaunupysäkille 100 m
Lentokentälle 35 min
Lähimmälle juna-asemalle 750 m
Lähimmälle metroasemalle 800 m
Lähimmälle raitiovaunupysäkille 100 m
Lentokentälle 35 min
Vapautuu
Kysy
Rakennusvuosi
1910
Kerros
3
Energiatehokkuusluokka
B2018
Ympäristöluokitus
BREEAM In-Use Excellent,GRESB Global Sector Leader 2025
Ota yhteyttä
Sponda Oy
Yrjönkatu 29C, 00100 Helsinki
Näytä puhelinnumero
020 43131
Laura Toponen
Senior Leasing Manager
Näytä puhelinnumero
+35850 413 4223
Sponda Oy
https://www.sponda.fiPyydä lisätietoa
