Vuokrataan toimistotilat - Helsinki
Pursimiehenkatu 26 C, Punavuori, 00150 Helsinki #10820777
Järjestämme yksityisnäyttöjä kohteissamme joka päivä – varaa omasi jo tänään.
Ikoninen Mestaritalo, ikkunat Perämiehenkadulle, hyvien palveluiden äärellä. Talossa on lämmin autohalli.
Tarjolla vuokralle trendikäs ja monipuolinen toimistotila, joka on remontoitu vuonna 2019. Tila soveltuu erinomaisesti erilaisiin yritystarpeisiin ja tarjoaa loistavat puitteet työskentelylle.
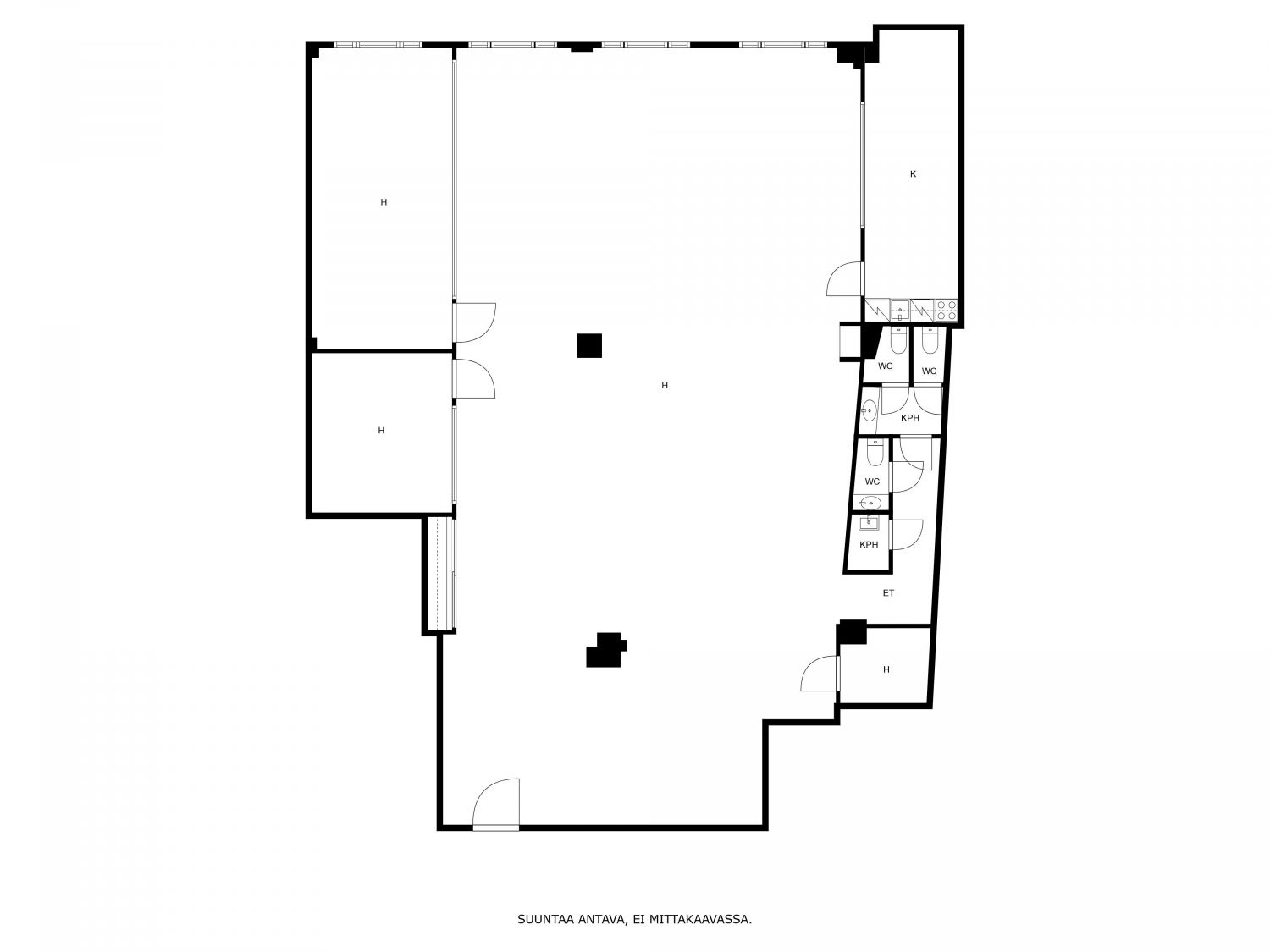
Tilat:
Iso avokonttori
Kolme neuvotteluhuonetta tai työhuonetta
Tilava keittiö
Kolme WC:tä
Varasto
Kaksi sisäänkäyntiä
Tilaan pääsee sekä henkilö- että tavarahissillä.
Yhteydenotot ja yksityisesittelypyynnöt:
Ville - Central LKV
ville@centrallkv.fiPuhelin: 045 78 75 75 77
Osoite
Pursimiehenkatu 26 C, 00150 Helsinki
Tilatyyppi
Toimistotilaa
300 m2
Kulkuyhteydet
Bussipysäkki lähellä, sujuvat yhteydet omalla autolla, hyvät pyöräilytiet ja raitiovaunupysäkki lähellä
Vapautuu
01.04.2025
Kerros
5
Ota yhteyttä
Pyydä lisätietoa
