Vuokrataan toimistotilat - Helsinki
Trooli, Työpajankatu 9, Kalasatama, 00580 Helsinki #10820711
Upea valoisa toimistotila Kalasatamassa
Osoite
Työpajankatu 9, 00580 Helsinki
Tilatyyppi
Toimistotilaa
1132,5 m2
Tilajako
Jaettavissa
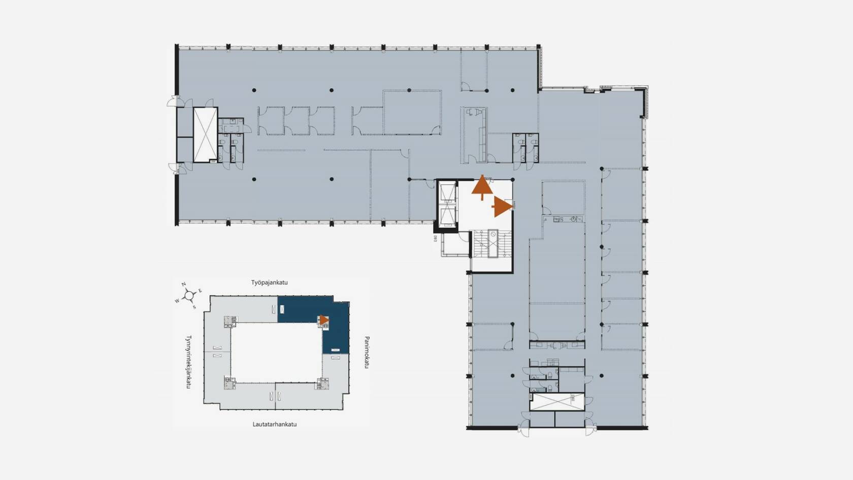
Pohjapiirros
Kiinteistö
Juuri remontoitua tilaa Kalasatamassa. Tämä toimistotila sijaitsee Troolin D-rapun neljännessä kerroksessa. Tilan ikkunat avautuvat neljään ilmansuuntaan.
Toimistotila on pääosin raakatilaa, mutta osa tilasta on rakennettu valmiiksi malliksi, jonka mukaisesti tila voidaan kokonaisuutena toteuttaa. Historiallinen miljöö, joka on täynnä trendikkäitä kohtaamisalueita ja viihtyisiä lounaspaikkoja, kuten Teurastamon alueen ravintolat.
- Siistiä, uudenveroista tilaa
- Hyvät kulkuyhteydet, mm. Kalasataman metroasema lähellä
- Aulapalvelu
- Laadukas henkilöstöravintola
- Vuokrattavia neuvottelutiloja
- Auditorio
- Kuntosali
- Vuokrattavat saunatilat
- Kauppakeskus Redi lähellä
Toimistotila on pääosin raakatilaa, mutta osa tilasta on rakennettu valmiiksi malliksi, jonka mukaisesti tila voidaan kokonaisuutena toteuttaa. Historiallinen miljöö, joka on täynnä trendikkäitä kohtaamisalueita ja viihtyisiä lounaspaikkoja, kuten Teurastamon alueen ravintolat.
- Siistiä, uudenveroista tilaa
- Hyvät kulkuyhteydet, mm. Kalasataman metroasema lähellä
- Aulapalvelu
- Laadukas henkilöstöravintola
- Vuokrattavia neuvottelutiloja
- Auditorio
- Kuntosali
- Vuokrattavat saunatilat
- Kauppakeskus Redi lähellä
Sijainti
Kalasatama
Pysäköinti
Autohalli ja pihapaikkoja
Palvelut
Alueella monipuoliset ravintola- ja kulttuuripalvelut
Kulkuyhteydet
Metroasema 500 m, Raitiovaunupysäkki 500 m, Bussipysäkki alle 100 m, Juna-asema 2,9 km, Lentoasema 16,6 km
Vapautuu
Heti
Rakennusvuosi
2002
Kerros
4
Energiatehokkuusluokka
C2018
Näkyvällä paikalla
Jaettavissa
Hissi
Ota yhteyttä
ScanReal Oy LKV
Opus Business Park
Hitsaajankatu 24
00810 Helsinki
info@scanreal.fi
Puh:
Näytä puhelinnumero
020 730 8830
Sopivat toimitilat yhdellä otolla!
Kartoitamme toimitilatarpeesi ja etsimme yrityksellesi parhaiten sopivat vapaat toimitilat. Koska vuokranantajat maksavat palvelumme, on tämä yrityksellesi veloituksetonta.
OTA YHTEYTTÄ - SOVI NÄYTTÖ!
Kaikki kohteemme eivät ole netissä, kerro tilatarpeesi niin kartoitamme vaihtoehdot.
Palvelumme on tilanhakijalle ilmainen
Pyydä lisätietoa
