Vuokrataan toimistotilat - Helsinki
Ilmalantori 1, Pasila, 00240 Helsinki #10820691
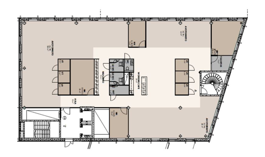
Vuokrataan edustavaa ja modernia toimistotilaa Ilmalan asemalta. Tila koostuu eri kokoisista neuvottelu- ja työhuoneista sekä avotoimistosta. Valoisassa toimistossa on modernit keittiö-, lounge- ja wc-tilat sekä näkymät neljään ilmansuuntaan.
Ilmalan Asema on lähes nollaenergiatalo, joka tarjoaa modernia, monipuolista toimitilaa erinomaisella sijainnilla. Talo ensimmäisessä kerroksessa toimii aulapalvelu, ravintola ja kahvila. Lisäksi kiinteistössä on suihku- ja pukeutumistilat, sekä kokous- ja edustustila 7. kerroksessa
Kiinteistö on valmistunut vuonna 2017 ja kiinteistöllä on LEED-platina ympäristösertifikaatti, ja se on varustettu aurinkopaneeleilla ja viherkatolla, mikä korostaa sen ympäristöystävällisyyttä ja kestävää kehitystä.
Ilmalan Asemalle on vaivatonta saapua niin autolla, julkisilla kulkuneuvoilla kuin pyörällä, sillä kiinteistö sijaitsee Ilmalan juna-aseman välittömässä läheisyydessä. Kiinteistössä on myös oma lämmin pysäköintihalli, jossa sähköautojen latausmahdollisuus sekä pyöräsäilytysalueet.
Lisätietoja soita 020 730 4530 tai info@repoint.fi. Palvelumme on tilanhakijalle ilmainen.
Repoint Toimitilat Oy
Itälahdenkatu 22 B, 00210 Helsinki
Näytä puhelinnumero
020 730 4530
Lisätietoja soita Näytä puhelinnumero 020 730 4530 tai info@repoint.fi
https://repoint.fi/