Vuokrataan toimistotilat - Espoo
Miestentie 5-9, Otaniemi, 02150 Espoo #10820406
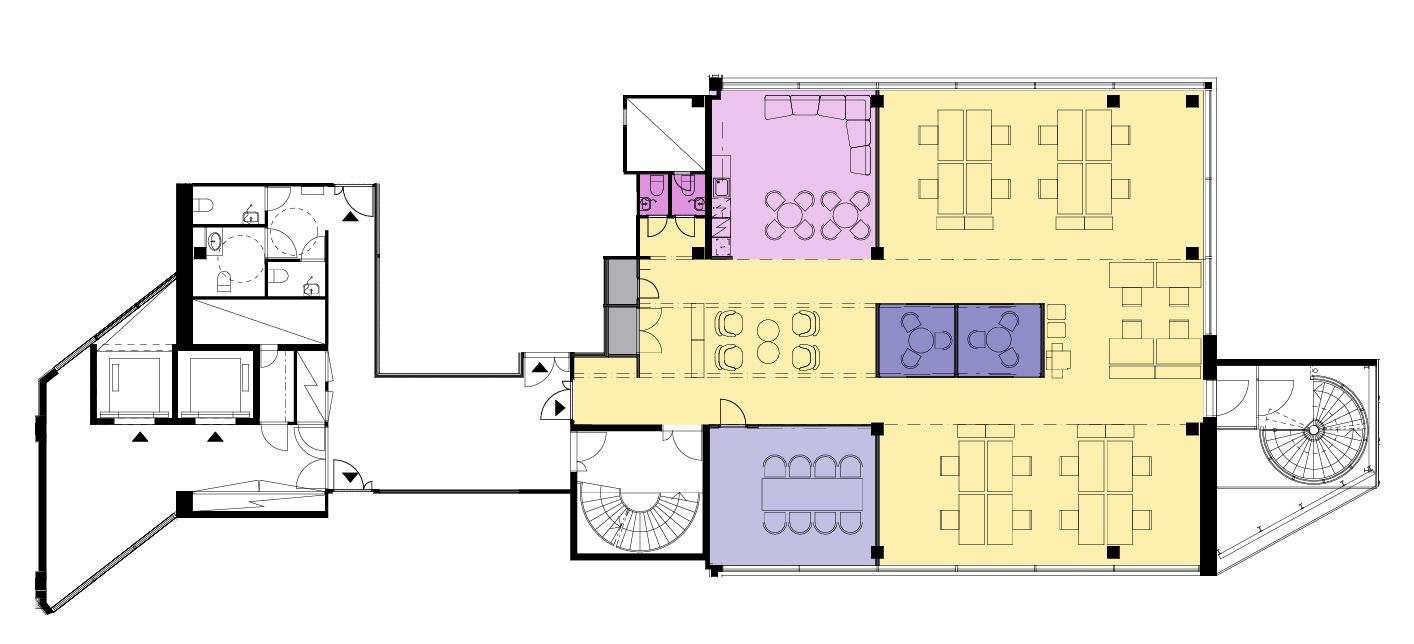
Vuokrattavana uutta, modernia, edustavaa toimistotilaa.
Osoite
Miestentie 5-9, 02150 Espoo
Tilatyyppi
Toimistotilaa
292 m2
Kiinteistö
Vuokrattavana uutta, valoisaa ja modernia toimistotilaa. Toimistossa on avotila, neuvotteluhuone, 2 puhelinhuone, lounge ja working cafe -alue.
Sijainti
Keilaniemi, Espoo
Pysäköinti
Autopaikkoja on vuokrattavissa talon omasta pysäköintihallista.
Palvelut
-Aulapalvelu
-Lounasravintola
-Vuorattavia neuvottelu- ja kokoustiloja
-Kuntosali
-Lounasravintola
-Vuorattavia neuvottelu- ja kokoustiloja
-Kuntosali
Kulkuyhteydet
-Bussi
-Oma auto
-Metro
-Oma auto
-Metro
Vapautuu
01.12.2025
Rakennusvuosi
2021
Kerros
5
Energiatehokkuusluokka
Ei lain edellyttämää energiatodistusta
Uudiskohde
Näkyvällä paikalla
Hissi
Ota yhteyttä
REALIUM OY LKV
Tammasaarenkatu 1, 00180 Helsinki
Vaihde:
Näytä puhelinnumero
010 326 346
Tuomo Mäkelä
tuomo.makela@realium.fi
p.
Näytä puhelinnumero
044 050 1158
Joel Keto
joel.keto@realium.fi
p.
Näytä puhelinnumero
045 317 0330
KAIKKI TILAVAIHTOEHDOT KERRALLA!
SOITA - MEILAA JA TILAA NÄYTTÖ!
Ilmainen palvelu tilanhakijoille.
Kartoitamme parhaat tilavaihtoehdot.
Kaikki kohteet eivät ole netissä.
Pyydä lisätietoa
