Vuokrataan toimistotilat - Helsinki
Pursimiehenkatu 29-31, Punavuori, 00150 Helsinki #10820332
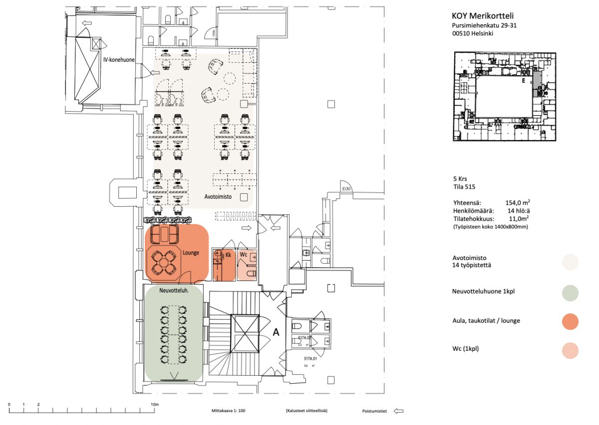
Vuokrataan 5. kerroksen valoisa ja avara toimistotila. Neuvotteluhuone ja avotilaa, jonka lisäksi minikeittiö ja wc. Huonekorkeus yli 3 metriä ja lattia on lakattua betonia.
Tilassa on täysin uusittu tekniikka ja jäähdytys takaa miellyttävän työskentelyn kesälläkin.
Erinomainen sijainti Punavuoressa, suositussa dynaamisessa ja yhteisöllisessä Merikorttelissa! Alueella paljon laadukkaita ravintoloita ja kahviloita. Pysäköintitilaa tarjolla korttelin omassa parkkihallissa sekä läheisissä pysäköintilaitoksissa. Hyvät julkiset yhteydet raitiovaunulla ja bussilla.
Lisätietoja soita 020 730 4530 tai info@repoint.fi. Palvelumme on tilanhakijalle ilmainen.
Hissi
Repoint Toimitilat Oy
Itälahdenkatu 22 B, 00210 Helsinki
Näytä puhelinnumero
020 730 4530
Lisätietoja soita Näytä puhelinnumero 020 730 4530 tai info@repoint.fi
https://repoint.fi/