Vuokrataan liiketilat - Parkano
Kirkkokatu 5, Keskusta, 39700 Parkano #10820305
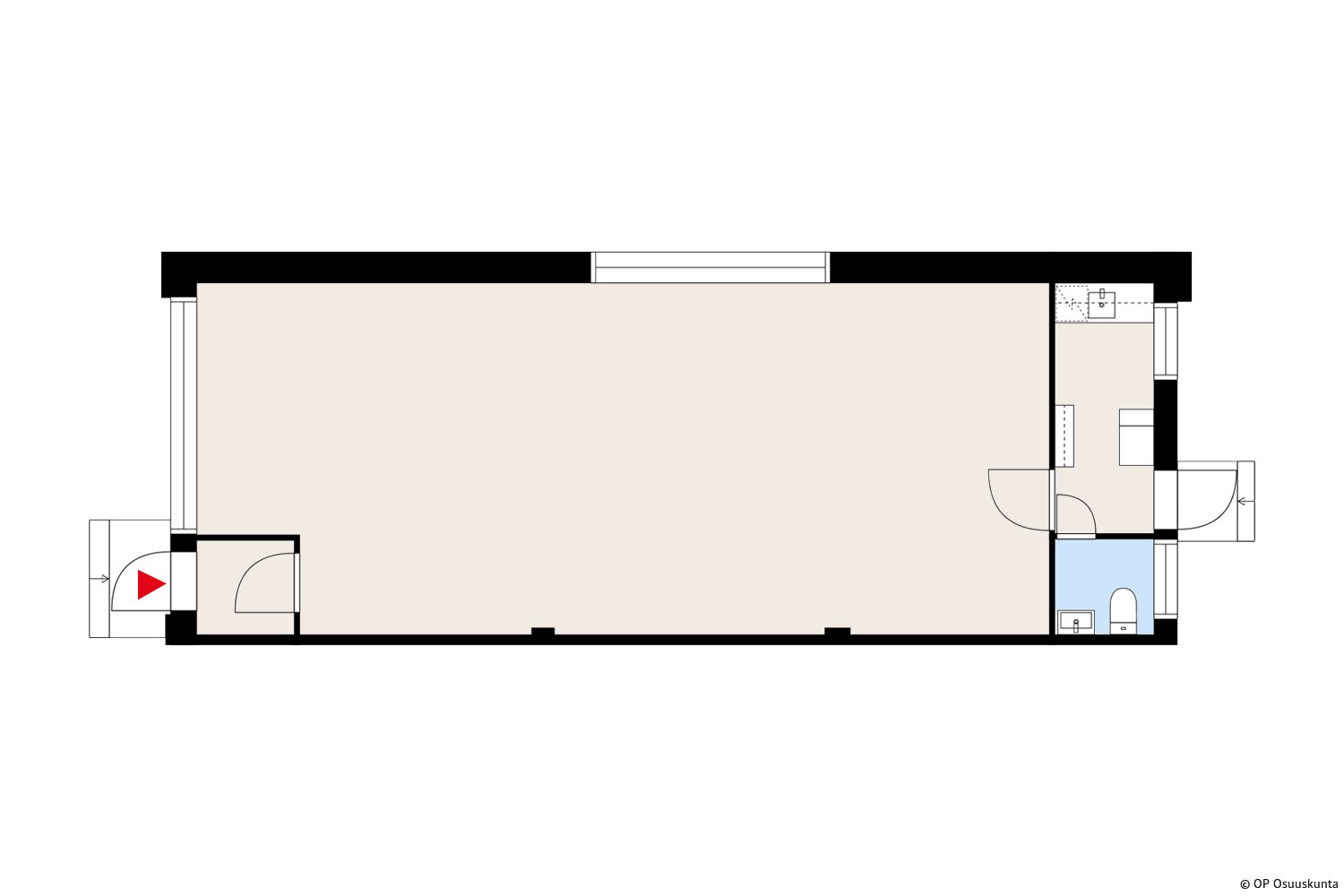
Vuokrattavana katutason liiketila/toimistotila Parkanon keskustassa. Siistissä toimitilassa on valoisa avotila sekä pienkeittiöllä ja vessalla varustetut takatilat. Kysy vuokraa!
Osoite
Kirkkokatu 5, 39700 Parkano
Tilatyyppi
Liiketilaa
77 m2
Kiinteistö
Parkanon Kirkkokatu 5
Pysäköinti
Parkkipaikkoja kiinteistön edessä.
Muuta
Tilan ominaisuudet:
Vapautuu
Heti vapaa
Kerros
Katutaso
Energiatehokkuusluokka
E
Katutasossa
Ota yhteyttä
OP Osuuskunta
Gebhardinaukio 1, 00510 Helsinki
Näytä puhelinnumero
010 252 7275
Joonas Lammasniemi
Näytä puhelinnumero
010 25 38 759
Pyydä lisätietoa
