Vuokrataan liiketilat - Espoo
Espoontie 25, 02740 Espoo #10820274
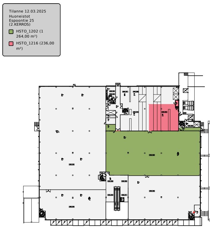
Vuokrattavana tilava toisen kerroksen liiketila Kehä III:n ja Turunväylän kupeessa sijaitsevassa, kodin sisustukseen keskittyneessä liikekeskuksessa. Vuokrattavaan toimitilaan kuuluu 1264 m2 myymälätila, 236 m2 varastotila ja jyvitetty 155 m2 osuus.
Retail Park Glomson on kodin sisustukseen keskittynyt liikekeskus, joka sijaitsee erinomaisella paikalla Espoon Lommilassa Kehä III:n ja Turunväylän kupeessa. Pihalla on runsaasti pysäköintipaikkoja.
Lisätietoja 020 7290 710.
Kohteella ei ole lain edellyttämää energiatodistusta.Kerros: 2
Osoite
Espoontie 25, 02740 Espoo
Tilatyyppi
Liiketilaa
1655 m2
Ota yhteyttä
CRE PREMISES
Puh. Näytä puhelinnumero 020 7290 710
Vantaankoskentie 14
01670 VANTAA
Pyydä lisätietoa
