Vuokrataan toimistotilat, tuotantotilat, varastotilat - Helsinki
Mekaanikonkatu 19, Herttoniemi, 00880 Helsinki #10820272
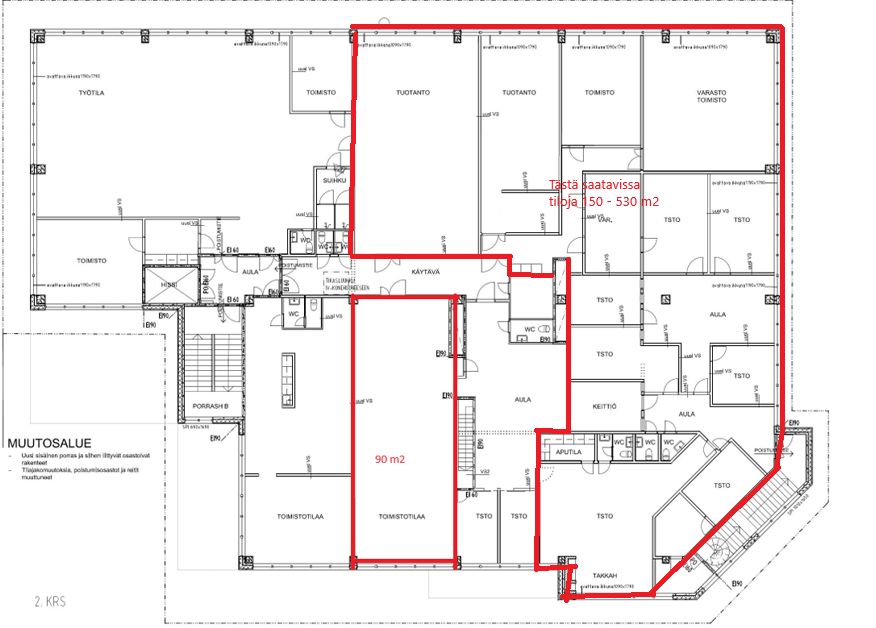
Vuokrataan Herttoniemessä pientuotanto- tai toimistotilaa kiinteistö 2. kerroksesta. Kerrokseen johtaa tavarahissi lastauslaiturilta. Tiloja esim. 150 - 530 m2. Tilaa voidaan tarpeen mukaan jakaa ja muokata sopivan suuruiseksi.
Erinomaiset liikenneyhteydet julkisilla.
Yhteystiedot: p. 045 261 6555/Mika
Lisää kohteita: www.premises.fi
Kohteella ei ole lain edellyttämää energiatodistusta.Kerros: 2
Osoite
Mekaanikonkatu 19, 00880 Helsinki
Tilatyyppi
Toimistotilaa
150 - 530 m2
Tuotantotilaa
150 - 530 m2
Varastotilaa
150 - 530 m2
Yhteensä
150 - 530 m2
Kulkuyhteydet
Bussit ja Metro
Ota yhteyttä
CRE PREMISES
Puh. Näytä puhelinnumero 020 7290 710
Vantaankoskentie 14
01670 VANTAA
Pyydä lisätietoa
