Vuokrataan toimistotilat - Helsinki
Kiviaidankatu 2, Lauttasaari, 00210 Helsinki #10820175
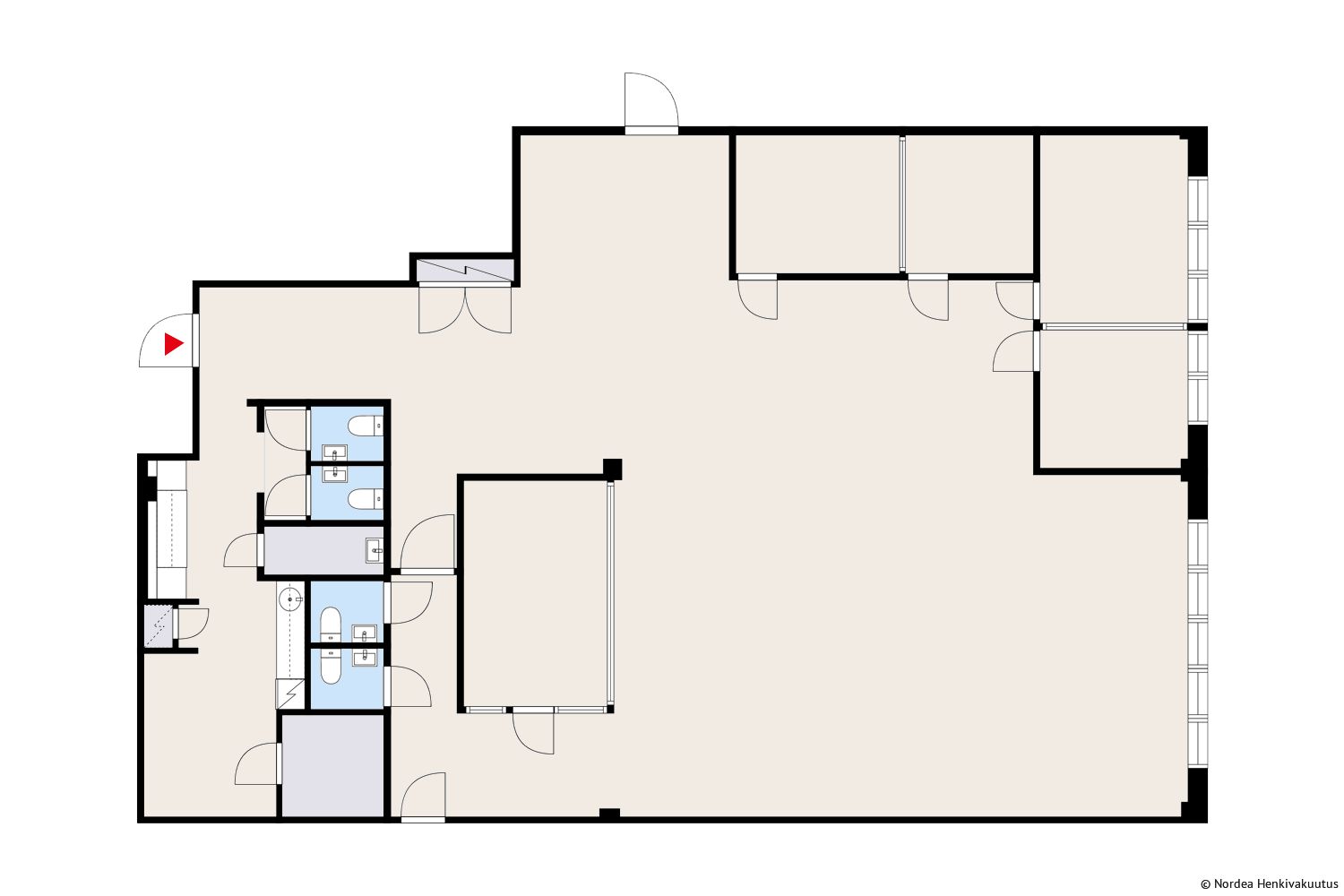
Vuokrataan siisti toimistotila Helsingin Lauttasaaressa. Tilassa runsaasti avotilaa, pieniä työhuoneita, neuvottelutila ja wc:eet. Ota yhteyttä ja kysy lisätietoja!
Nordea Henkivakuutus Suomi Oy:n omistamissa kiinteistössä käytetään vihreää kiinteistösähköä.
Osoite
Kiviaidankatu 2, 00210 Helsinki
Tilatyyppi
Toimistotilaa
262 m2
Kiinteistö
Helsingin Kiviaidankatu 2
Pysäköinti
Autopaikkoja on vuokrattavissa talon omasta pysäköintihallista tai pihalla. Kiviaidankadun varrella on ilmaisia 4h-kiekkopysäköintipaikkoja.
Muuta
Tilan ominaisuudet: avo-/kombitoimisto
Vapautuu
Heti vapaa
Kerros
3.
Energiatehokkuusluokka
C
Ota yhteyttä
Nordea Henkivakuutus Suomi Oy
Aleksis Kiven katu 9, Helsinki 00020 NORDEA
Juha Hakala
Näytä puhelinnumero
050 477 7966
Nordea Henkivakuutus Suomi Oy vuokraa toimitiloja omistamistaan ja hallinnoimistaan sijoituskiinteistöistä pääkaupunkiseudulla. Toimitilavuokrauksessa Nordea Henkivakuutuksen yhteistyökumppani on Newsec Asset Management.
http://nordeahenkivakuutustoimitilat.fiPyydä lisätietoa
