Vuokrataan liiketilat - Helsinki
Annankatu 27, Kamppi, 00100 Helsinki #10820174
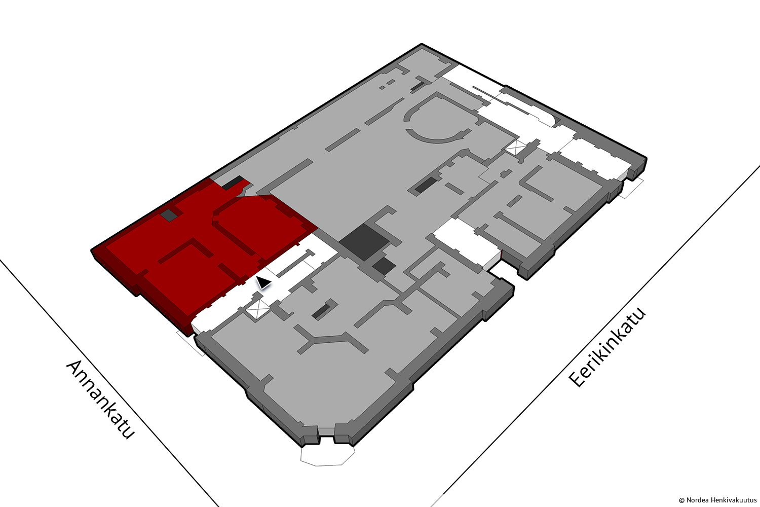
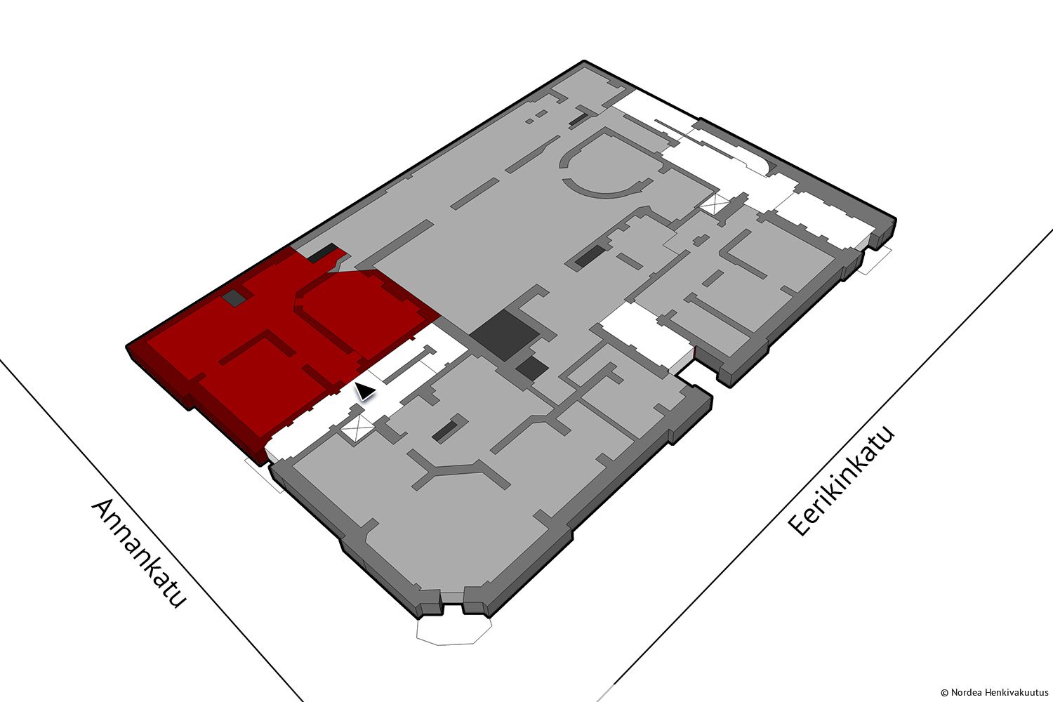
Vuokrataan hieno katutason liiketila Helsingin Annankadulla. Kohde sijaitsee näkyvällä paikalla, kävelymatkan päässä Kampin kauppakeskuksesta. Ota yhteyttä, jos kiinnostuit. Kerromme mielellämme lisää!
Osoite
Annankatu 27, 00100 Helsinki
Tilatyyppi
Liiketilaa
137 m2
Kiinteistö
Helsingin Annankatu 27
Pysäköinti
Sopimuspysäköintipaikkoja on tarjolla useissa lähialueen pysäköintilaitoksissa. Lyhyaikaiseen pysäköintiin on paikkoja talon välittömässä läheisyydessä Annankadun ja lähikatujen varrella.
Muuta
Tilan ominaisuudet:
Vapautuu
Heti vapaa
Kerros
Katutaso
Energiatehokkuusluokka
D
Katutasossa
Ota yhteyttä
Nordea Henkivakuutus Suomi Oy
Aleksis Kiven katu 9, Helsinki 00020 NORDEA
Juha Hakala
Näytä puhelinnumero
050 477 7966
Nordea Henkivakuutus Suomi Oy vuokraa toimitiloja omistamistaan ja hallinnoimistaan sijoituskiinteistöistä pääkaupunkiseudulla. Toimitilavuokrauksessa Nordea Henkivakuutuksen yhteistyökumppani on Newsec Asset Management.
http://nordeahenkivakuutustoimitilat.fiPyydä lisätietoa
