Vuokrataan toimistotilat - Helsinki
Hämeentie 19, Sörnäinen, 00500 Helsinki #10820138
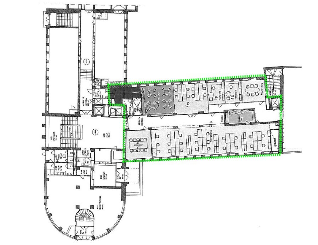
Vuokrattavana ensimmäisen kerroksen upeaa, modernia toimistotilaa.
Osoite
Hämeentie 19, 00500 Helsinki
Tilatyyppi
Toimistotilaa
405 m2
Kiinteistö
Vuokrattavana ensimmäisen kerroksen upeaa, modernia toimistotilaa. Toimistossa on avotila ja työhuoneet. Tila jaettavissa ja se remontoidaan vuokralaisen tarpeiden mukaan.
Sijainti
Sörnäinen, Helsinki
Pysäköinti
Kiinteistön parkkihallissa.
Palvelut
-Ravintola
-Neuvottelutiloja
-Kuntosali
-Neuvottelutiloja
-Kuntosali
Kulkuyhteydet
-Metro
-Raitiovaunu
-Bussi
-Oma auto
-Raitiovaunu
-Bussi
-Oma auto
Vapautuu
Heti
Kerros
1
Energiatehokkuusluokka
Ei lain edellyttämää energiatodistusta
Näkyvällä paikalla
Hissi
Ota yhteyttä
REALIUM OY LKV
Tammasaarenkatu 1, 00180 Helsinki
Vaihde:
Näytä puhelinnumero
010 326 346
Tuomo Mäkelä
tuomo.makela@realium.fi
p.
Näytä puhelinnumero
044 050 1158
Joel Keto
joel.keto@realium.fi
p.
Näytä puhelinnumero
045 317 0330
KAIKKI TILAVAIHTOEHDOT KERRALLA!
SOITA - MEILAA JA TILAA NÄYTTÖ!
Ilmainen palvelu tilanhakijoille.
Kartoitamme parhaat tilavaihtoehdot.
Kaikki kohteet eivät ole netissä.
Pyydä lisätietoa
