Vuokrataan liiketilat - Helsinki
Siltasaarenkatu 8-10, Hakaniemi, 00530 Helsinki #10820134
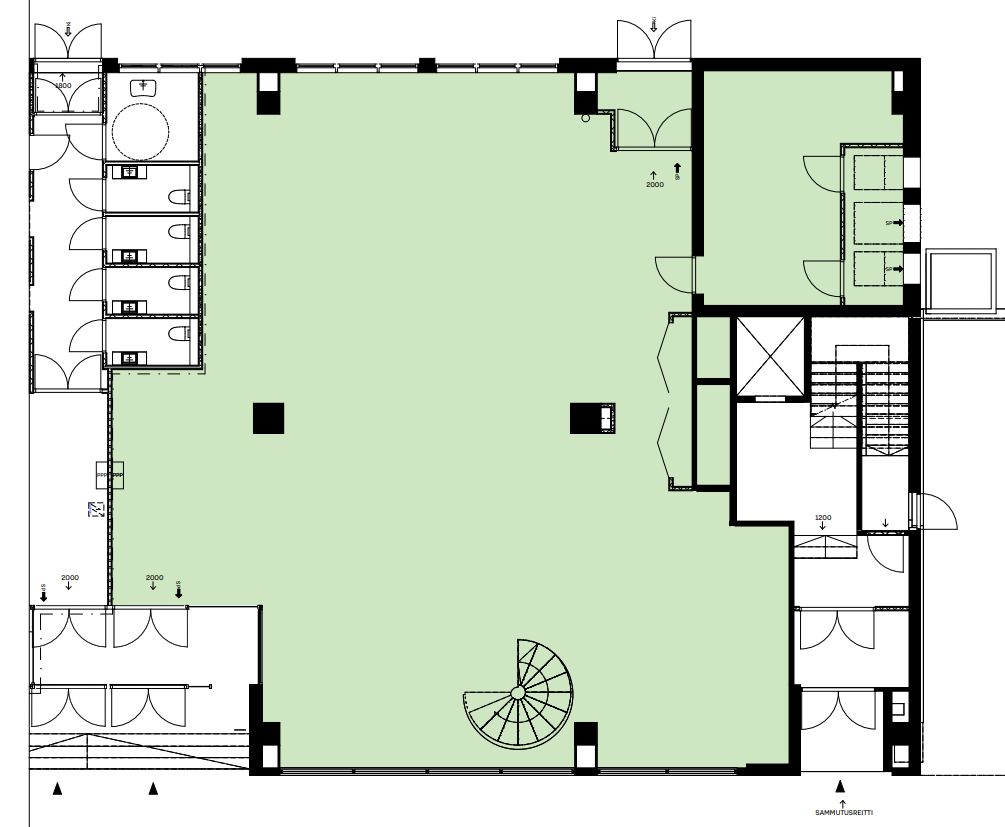
Vuokrattavana katutason uutta, täysin remontoitua liiketilaa isoilla ikkunoilla.
Osoite
Siltasaarenkatu 8-10, 00530 Helsinki
Tilatyyppi
Liiketilaa
293 m2
Tila soveltuu
Ravintola
Kiinteistö
Vuokrattavana katutason uutta, täysin remontoitua liiketilaa isoilla ikkunoilla Paasivuorenpuistikon suuntaan.
Sijainti
Hakaniemi, Helsinki
Pysäköinti
Omassa pysäköintihallissa on runsaasti tilaa autoille.
Palvelut
-Aulapalvelu
-Neuvottelutiloja
-Projektitiloja
-Lounasravintola
-Neuvottelutiloja
-Projektitiloja
-Lounasravintola
Kulkuyhteydet
-Metro
-Bussi
-Raitiovaunu
-Oma auto
-Bussi
-Raitiovaunu
-Oma auto
Vapautuu
Heti
Kerros
1
Energiatehokkuusluokka
Ei lain edellyttämää energiatodistusta
Katutasossa
Näkyvällä paikalla
Hissi
Ota yhteyttä
REALIUM OY LKV
Tammasaarenkatu 1, 00180 Helsinki
Vaihde:
Näytä puhelinnumero
010 326 346
Tuomo Mäkelä
tuomo.makela@realium.fi
p.
Näytä puhelinnumero
044 050 1158
Joel Keto
joel.keto@realium.fi
p.
Näytä puhelinnumero
045 317 0330
KAIKKI TILAVAIHTOEHDOT KERRALLA!
SOITA - MEILAA JA TILAA NÄYTTÖ!
Ilmainen palvelu tilanhakijoille.
Kartoitamme parhaat tilavaihtoehdot.
Kaikki kohteet eivät ole netissä.
Pyydä lisätietoa
