Vuokrataan toimistotilat - Espoo
Vänrikinkuja 3, Perkkaa, 02600 Espoo #10820126
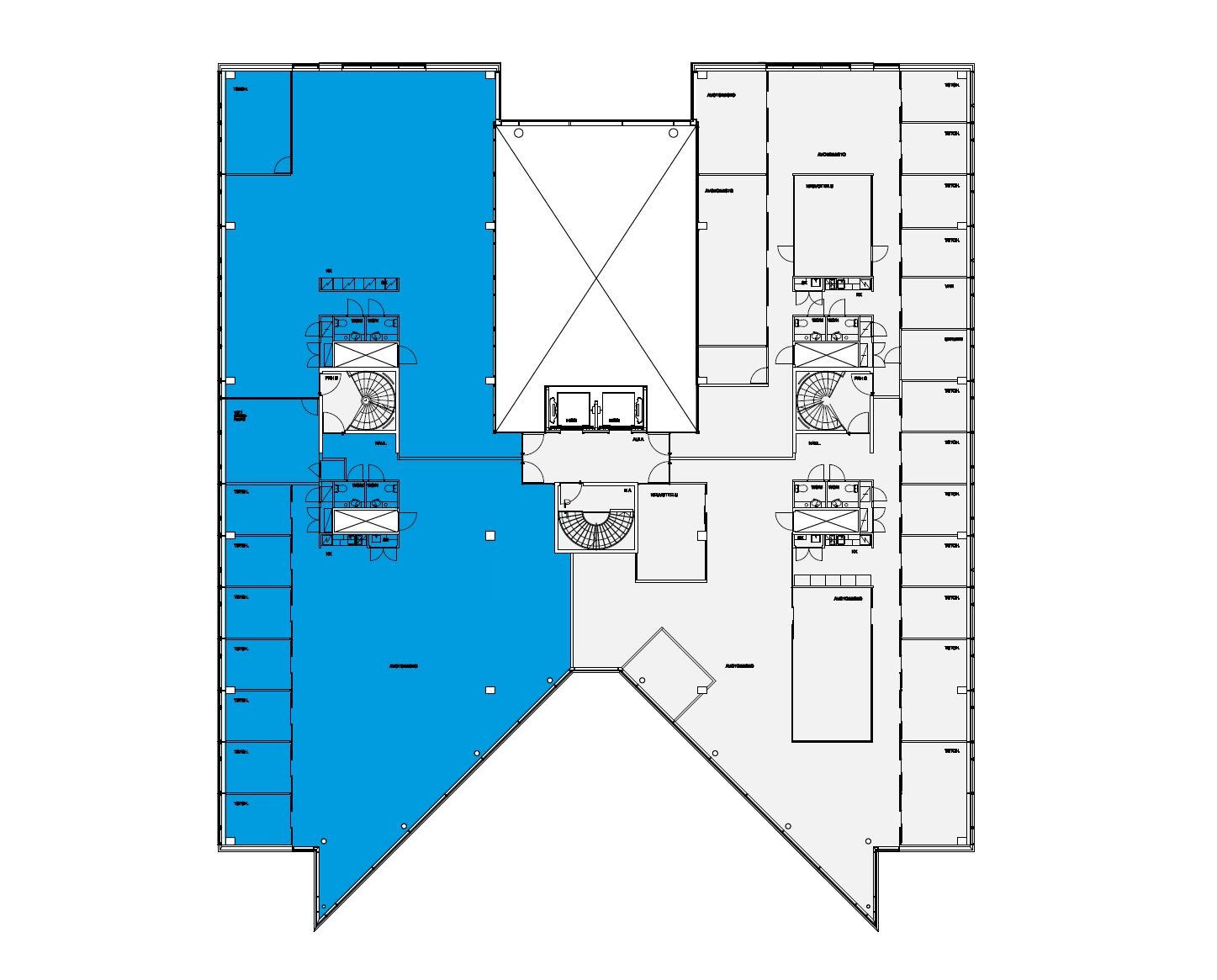
Neljännen kerroksen valoisa toimisto. Puolet tilasta on remontoitu valmiiksi. Tilaan on helppo lastata tavaraa vieressä sijaitsevan lastauslaiturin kautta. Ohessa kuvia kiinteistön tiloista.
Business Park sijaitsee näkyvällä paikalla, erinomaisten kulkuyhteyksien varrella, lähellä Leppävaaraa. Ilmoitettu nelimäärä sisältää jyvityksen yhteiskäyttöisistä alulatiloista.
Polaris Business Parkin kokonaisuuteen kuuluu yli 600 autopaikkaa sisältävä parkkitalo ja lisäksi n. 50 pihapaikkaa.
Lisätietoja 020 7290 710. Lisää kohteita www.premises.fi
Energialuokka DKerros: 4
CRE PREMISES
Puh. Näytä puhelinnumero 020 7290 710
Vantaankoskentie 14
01670 VANTAA
