Vuokrataan toimistotilat - Espoo
Vänrikinkuja 3, Perkkaa, 02600 Espoo #10820124
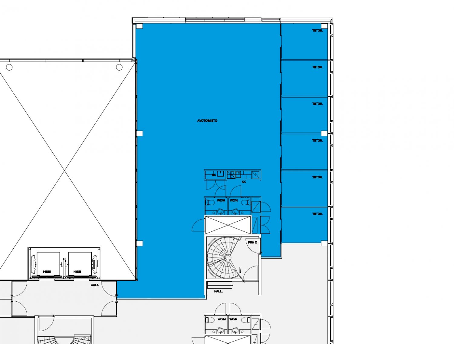
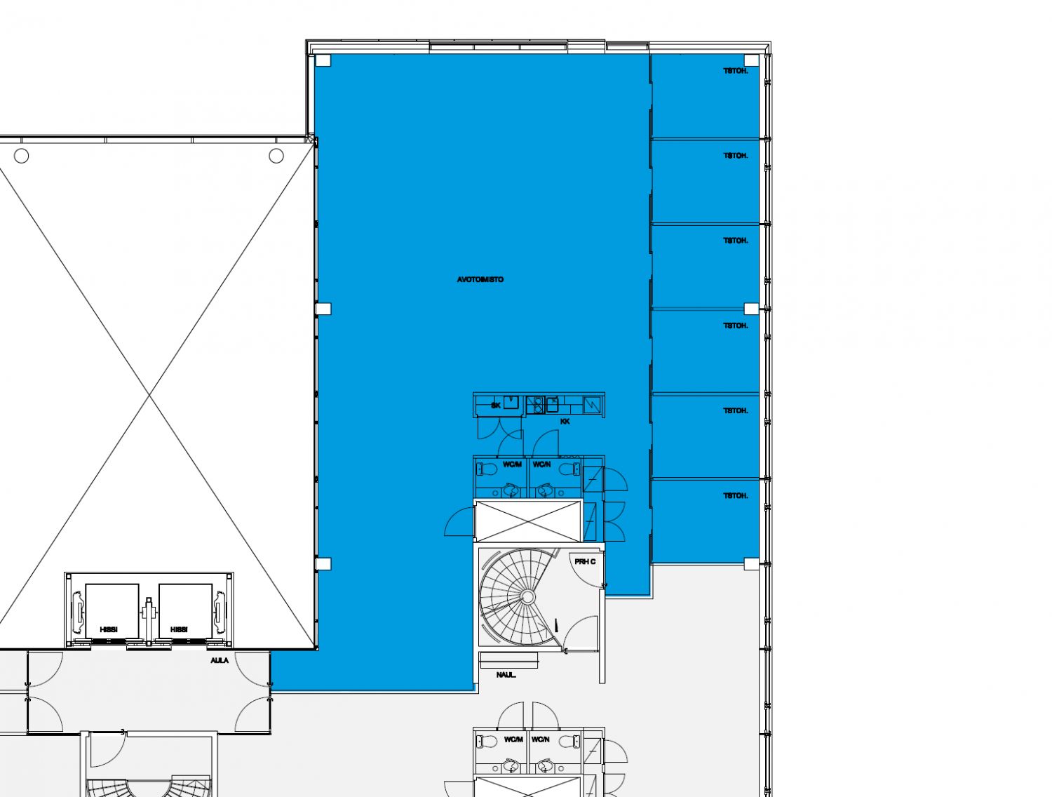
Toisen kerroksen valoisa toimisto. Ohessa kuvia kiinteistön tiloista.
Business Park sijaitsee näkyvällä paikalla, erinomaisten kulkuyhteyksien varrella, lähellä Leppävaaraa. Ilmoitettu nelimäärä sisältää jyvityksen yhteiskäyttöisistä alulatiloista.
Polaris Business Parkin kokonaisuuteen kuuluu yli 600 autopaikkaa sisältävä parkkitalo ja lisäksi n. 50 pihapaikkaa.
Lisätietoja 020 7290 710. Lisää kohteita www.premises.fi
Energialuokka DKerros: 2
Osoite
Vänrikinkuja 3, 02600 Espoo
Tilatyyppi
Toimistotilaa
246,5 m2
Ota yhteyttä
CRE PREMISES
Puh. Näytä puhelinnumero 020 7290 710
Vantaankoskentie 14
01670 VANTAA
Pyydä lisätietoa
