Vuokrataan toimistotilat - Oulu
Aapistie 1, 90220 Oulu #10820118
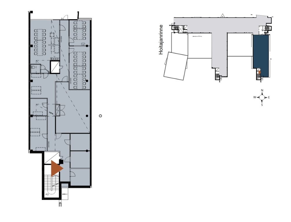
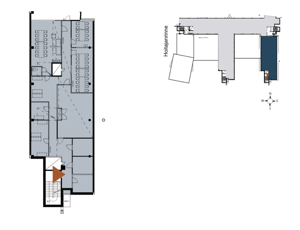
Vuokrataan Oulun Kotinkankaan sairaala-alueelta kolmannen kerroksen toimistotila.
Lisätietoja numerosta 020 7290 710. Lisää kohteita osoitteessa www.premises.fi.
Energialuokka E2013Kerros: 3
Osoite
Aapistie 1, 90220 Oulu
Tilatyyppi
Toimistotilaa
257 m2
Ota yhteyttä
CRE PREMISES
Puh. Näytä puhelinnumero 020 7290 710
Vantaankoskentie 14
01670 VANTAA
Pyydä lisätietoa
