Vuokrataan toimistotilat - Oulu
Isokatu 32, Keskusta, 90100 Oulu #10820117
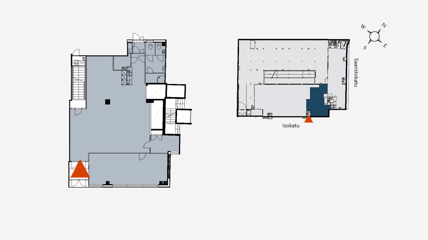
Tilassa on tehty täys remontti 2021 vuonna. 2krs. on 524 m2 ja 1krs. 172,5 m2. Mieluiten vuokrataan yhtenä kokonaisuutena.
Toimistotila Oulun ydinkeskustasta, mahdollista yhdistää myös viereiseen 139 m2 tilaan. Toimiston välittömästä läheisyydestä löytyy runsaasti ravintoloita, ruoka- ja päivittäistavarakauppoja sekä muita palveluita.
Lisätietoja 020 7290 710. Lisää kohteita www.premises.fi
Energialuokka C2007.Kerros: 1-2
Osoite
Isokatu 32, 90100 Oulu
Tilatyyppi
Toimistotilaa
696,5 m2
Ota yhteyttä
CRE PREMISES
Puh. Näytä puhelinnumero 020 7290 710
Vantaankoskentie 14
01670 VANTAA
Pyydä lisätietoa
