Vuokrataan toimistotilat, tuotantotilat - Raisio
Sammalkalliontie 9, 21200 Raisio #10820066
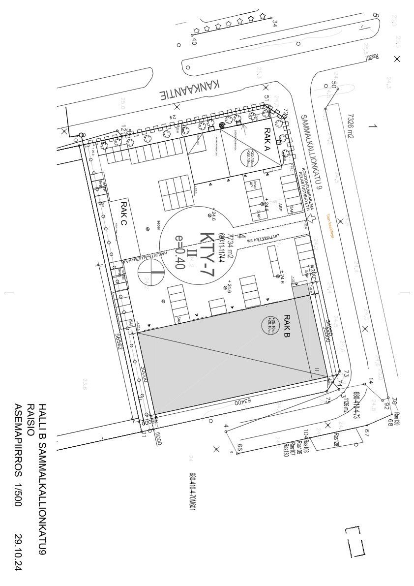
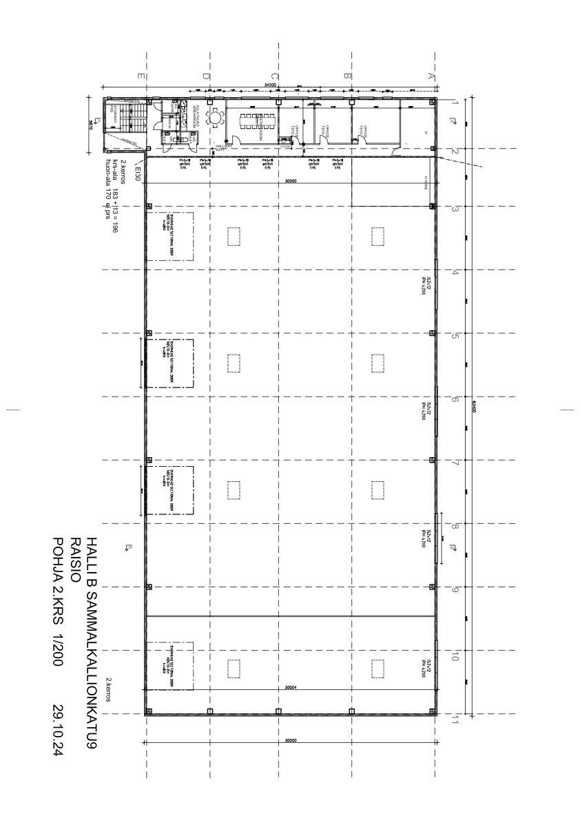
Vuokrattavana 2 123 m² tuotantokiinteistö, osoitteessa Sammalkalliontie 9b, Raisio. Tontille rakennetaan korkealuokkainen tuotantohalli, jossa tuotantotilojen kerrosala on 1 927 m² ja toimiston osuus 196 m². Hallin korkeus 6 metriä.
Tilat räätälöidään tulevan käyttäjän tarpeisiin. Kiinteistön sijainti on välittömässä 8-tien läheisyydessä.
Ota yhteyttä, niin suunnitellaan yhdessä teidän tulevat toimitilat!
Tässä vaiheessa pääset vaikuttamaan tulevien tilojen layoutiin ja varusteluun.
- Tontin pinta-ala: 3 663 m²
- Kaavoitus: KTY-7 (Toimitilarakennusten korttelialue)
- Kiinteistötunnus: 680-11-1174-4
Lisää toimitiloja www.rhg.fi
Uudiskohde
RHG Real Estate
Hämeenkatu 2 B20, 20500 Turku
Näytä puhelinnumero
020 734 4020
Tony Rosenblad
Hallituksen puheenjohtaja
Näytä puhelinnumero
+358 50 551 5375
