Vuokrataan toimistotilat - Oulu
Kasarmintie 15, Koskenniska, 90130 Oulu #10820042
Toimistotilaa kävelymatkan päässä keskustasta
Osoite
Kasarmintie 15, 90130 Oulu
Tilatyyppi
Toimistotilaa
587 m2
Kiinteistö
Toimistotilaa kävelymatkan päässä keskustasta
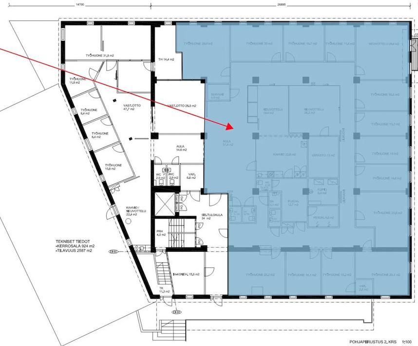
Olisiko tässä yrityksellesi uudet toimitilat upeissa Oulujoen rantamaisemissa ja kävelymatkan päässä keskustasta? Tämä kaikkiaan n.587 m² toimistotila pitää sisällään muokattavaa yhteistä tilaa, 16 erillistä toimistohuonetta, oman keittiön ja sosiaalitilat. Neliöt sisältävät n. 24 m² jyvityksen yhteisaulasta. Tila on mitoitettu n. 40 henkilölle. Koskenniskan Vartti rakennettiin alun perin vuonna 1928. Tekniikaltaan ja muunneltavuudeltaan kiinteistö on kuitenkin saneerattu tämän päivän vaatimustason mukaiseksi. Pysäköintipaikkoja vuokrattavissa piha-alueelta. Pyörille on oma katos piha-alueella.
Sijainti
Toimisto sijaitsee hyvien kulkuyhteyksien varrella n. 2 kilometriä Oulun keskustasta. Joukkoliikenteen pysäkki on kiinteistön edessä ja pyöräillen pääsee kokemaan Oulun upeimmat reitistöt.
Tästä järkevä ja viihtyisä toimitila yrityksellesi. Ota yhteyttä, niin mennään tutustumaan paikan päälle!
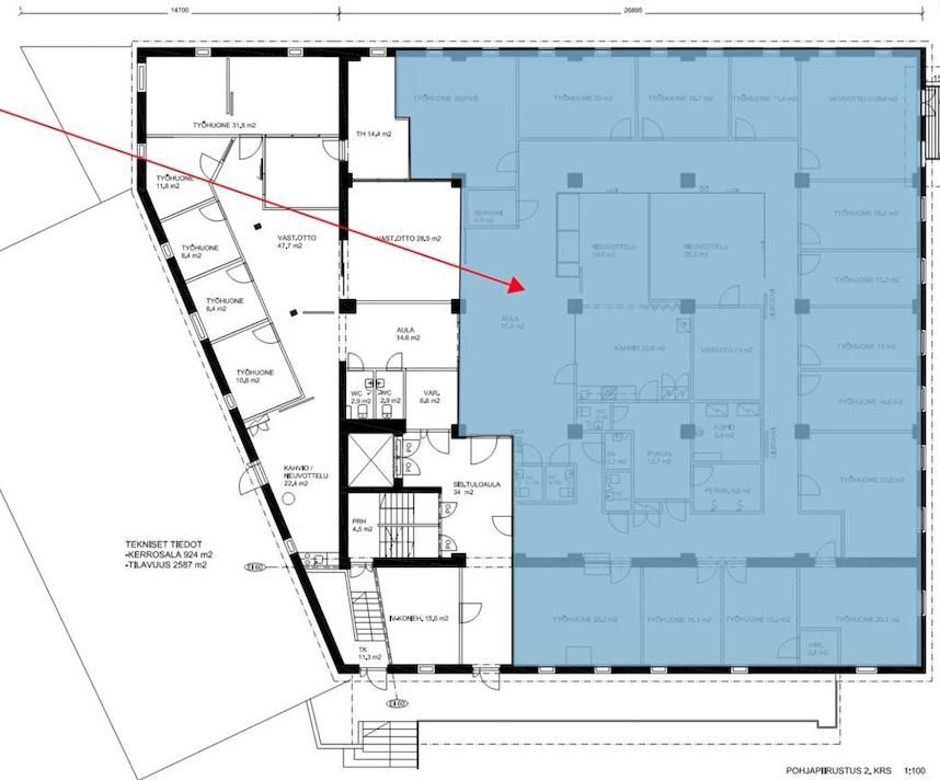
Olisiko tässä yrityksellesi uudet toimitilat upeissa Oulujoen rantamaisemissa ja kävelymatkan päässä keskustasta? Tämä kaikkiaan n.587 m² toimistotila pitää sisällään muokattavaa yhteistä tilaa, 16 erillistä toimistohuonetta, oman keittiön ja sosiaalitilat. Neliöt sisältävät n. 24 m² jyvityksen yhteisaulasta. Tila on mitoitettu n. 40 henkilölle. Koskenniskan Vartti rakennettiin alun perin vuonna 1928. Tekniikaltaan ja muunneltavuudeltaan kiinteistö on kuitenkin saneerattu tämän päivän vaatimustason mukaiseksi. Pysäköintipaikkoja vuokrattavissa piha-alueelta. Pyörille on oma katos piha-alueella.
Sijainti
Toimisto sijaitsee hyvien kulkuyhteyksien varrella n. 2 kilometriä Oulun keskustasta. Joukkoliikenteen pysäkki on kiinteistön edessä ja pyöräillen pääsee kokemaan Oulun upeimmat reitistöt.
Tästä järkevä ja viihtyisä toimitila yrityksellesi. Ota yhteyttä, niin mennään tutustumaan paikan päälle!
Vapautuu
Kysy
Kerros
2
Ota yhteyttä
Logistila Oy
Kiilakiventie 1, 90250 OULU
Sami Karppinen
Näytä puhelinnumero
+358401994722
Pyydä lisätietoa
