Vuokrataan liiketilat - Kempele
Zatelliitintie 17, Zateliitti, 90440 Kempele #10820040
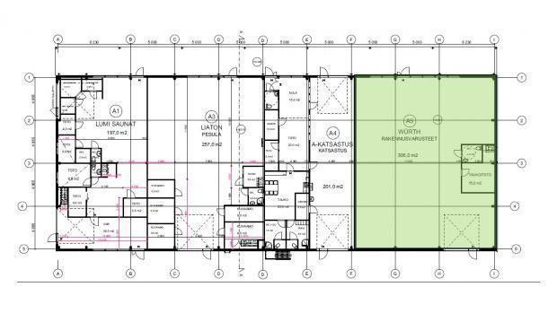
306 m² liiketila Kempeleen ZatelliittiParkissa
Osoite
Zatelliitintie 17, 90440 Kempele
Tilatyyppi
Liiketilaa
306 m2
Pohjapiirros
Kiinteistö
306 m² liiketila Kempeleen ZatelliittiParkissa
Kempeleen ZatelliittiParkissa on vapautumassa 306 m² liiketila. Tila koostuu avarasta ja valoisasta liiketilasta. Lisäksi on n. 30 m² sosiaalitilat sisältäen keittiön, wc:n ja siivouskomeron. Kiinteistöstä on vuokrattavissa erillistä varastotilaa. Pihalla on runsaasti pysäköintitilaa.
Sijainti
Liiketila sijaitsee näkyvällä paikalla moottoritie E8:n varrella. Hyvät kulkuyhteydet ympäri Oulun seutua.
Ota yhteyttä, niin mennään paikan päälle katsomaan kohdetta. Tässä on toimiva ja viihtyisä liikepaikka yrityksellesi!
Kempeleen ZatelliittiParkissa on vapautumassa 306 m² liiketila. Tila koostuu avarasta ja valoisasta liiketilasta. Lisäksi on n. 30 m² sosiaalitilat sisältäen keittiön, wc:n ja siivouskomeron. Kiinteistöstä on vuokrattavissa erillistä varastotilaa. Pihalla on runsaasti pysäköintitilaa.
Sijainti
Liiketila sijaitsee näkyvällä paikalla moottoritie E8:n varrella. Hyvät kulkuyhteydet ympäri Oulun seutua.
Ota yhteyttä, niin mennään paikan päälle katsomaan kohdetta. Tässä on toimiva ja viihtyisä liikepaikka yrityksellesi!
Vapautuu
Kysy
Liitetiedostot
Ota yhteyttä
LogisTila Oy
Kiilakiventie 1, 90250 OULU
Sami Karppinen
Näytä puhelinnumero
+358401994722
Pyydä lisätietoa
