Vuokrataan tuotantotilat, varastotilat - Kuopio

Poijutie 3, Tuotanto- ja varastotila, Poijutie 3, 70460 Kuopio #10820029

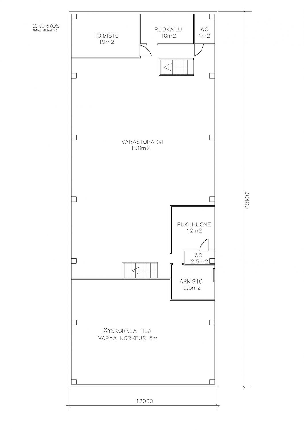
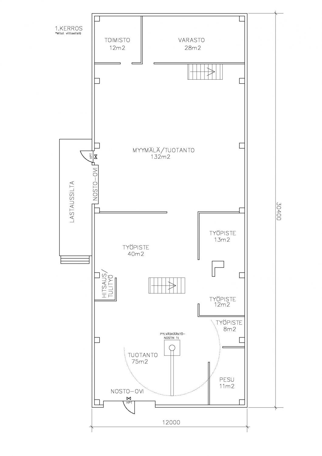
Tuotanto- ja varastotila Kelloniemessä. 1. kerroksen pohja-ala 360 m2. Lisäksi 2. kerroksessa varasto- ja toimistotilaa 190 m2. Vapakorkeus 5 m. Hallissa lastaussilta ja 2 nosto-ovea. Öljynerotuskaivot 1 t puominosturi. Kaukolämpö, lisäksi ilmalämpöpumput viilennykseen ja lämmitykseen.

Osoite
Poijutie 3, 70460 Kuopio
Tilatyyppi
Tuotantotilaa
360 m2
Varastotilaa
360 m2
Yhteensä
360 - 550 m2
Tila soveltuu
Autokorjaamo, tulityötila
Kiinteistö
Kiinteistö soveltuu hyvin tuotanto- varasto- ja huoltotilaksi ja on helposti muokattavissa erilaisiin käyttötarpeisiin. 2. kerroksen parven koko on mahdollista pienentää mikäli korkeaa tilaa tarvitaan enemmän. Pihatilat edestä, päädystä ja takaa on asfaltoitu. Konttoreissa ja tuotantotiloissa on valmiina verkkokaapelointi. Palvelimen sijoittaminen varastotilaan onnistuu helposti. Kiinteistössä on DNA:n valokuituyhteys.
Kiinteistön palvelut
Asiakaspysäköinti, Lastauslaituri, Piha
Pysäköinti
16 pysäköintipaikkaa joista 12 sähköllä
Palvelut
Lounasravintola kävelymatkan päässä
Vuokralaisia
Alimmassa kerroksessa toimii automaalaamo
Vapautuu
Heti vapaana

Katutasossa

Lastauslaituri

Ota yhteyttä

Sähköhuolto Tissari Oy / Osmo Tissari Näytä puhelinnumero 044-3038203

Pyydä lisätietoa

Kohteesta Poijutie 3, Kuopio

 

B2B palvelut

LASTAUSRATKAISUT

Mainos
Lastauksien ratkaisut tehokkaammin ja turvallisemmin

MARKKINOINTI

Tavoita oikea kohderyhmä!