Vuokrataan toimistotilat, varastotilat - Espoo
Koskelontie 21-25, Koskelo, 02920 Espoo #10819984
Espoon Koskelossa sijaitseva Koskelo Trade Park on BREEAM-sertifioitu logistiikkakiinteistö, jonka keskeinen sijainti Kehä III:n välittömässä läheisyydessä takaa nopeat yhteydet kaikille pääväylille. Kiinteistöstä on mahdollista saada nyt liike-, toimisto- ja varastotilat saman katon alta. Tilat on remontoitavissa käyttäjien viihtyvyyden takaamiseksi. Parkkipaikkoja pihalla.
Kohteessa on tarjolla varastotilaa A-, B- ja C-talosta, sekä toimisto- ja liiketilaa B- ja C-talosta.
A-talo: 1410 m² varasto. A-talon maantason varasto, jossa nosto-ovi * 3 ja joiden leveys 4,5 m. Tilan vapaa korkeus on n. 5-6 m. Varastotilan parvella toimistotilaa.
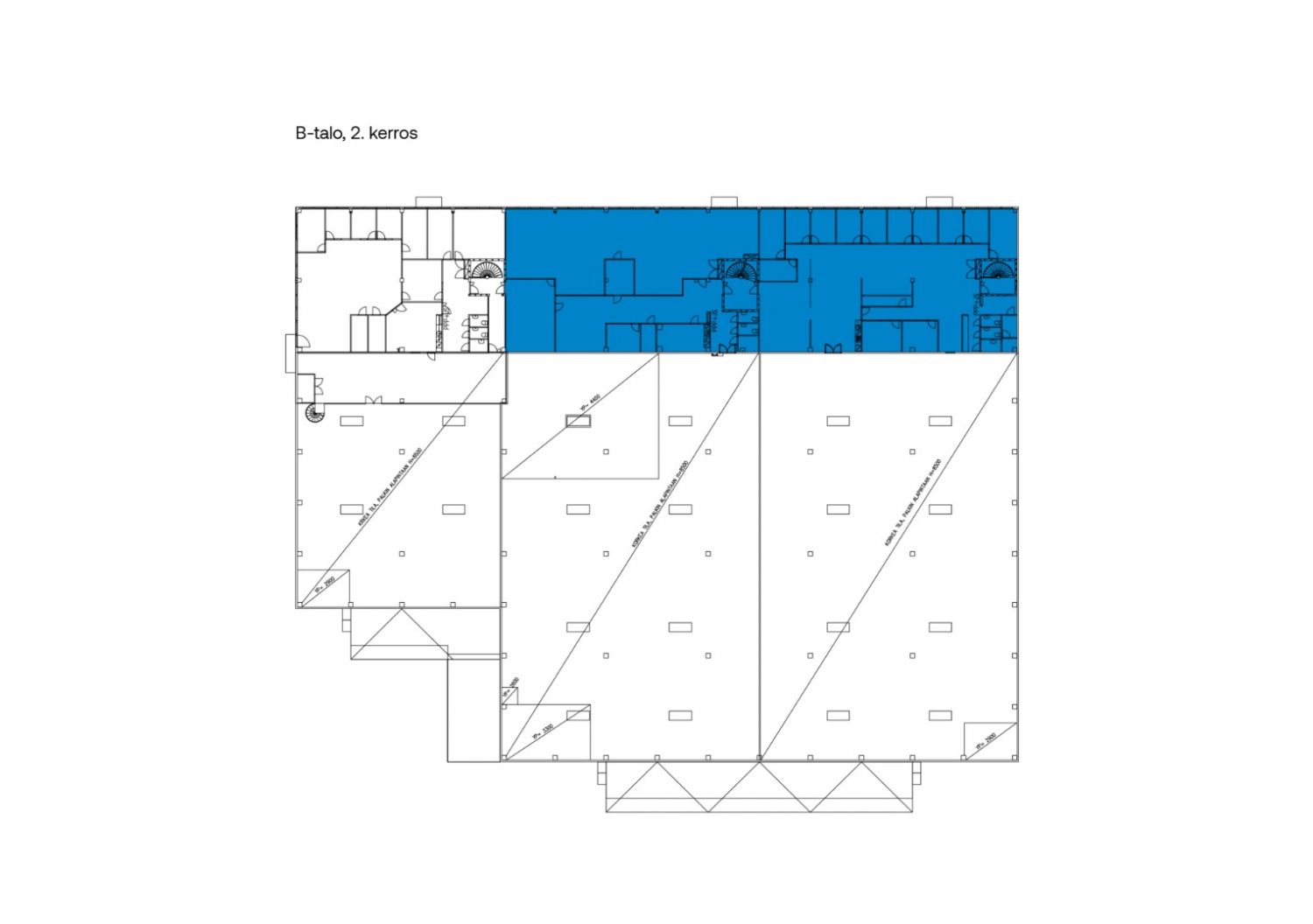
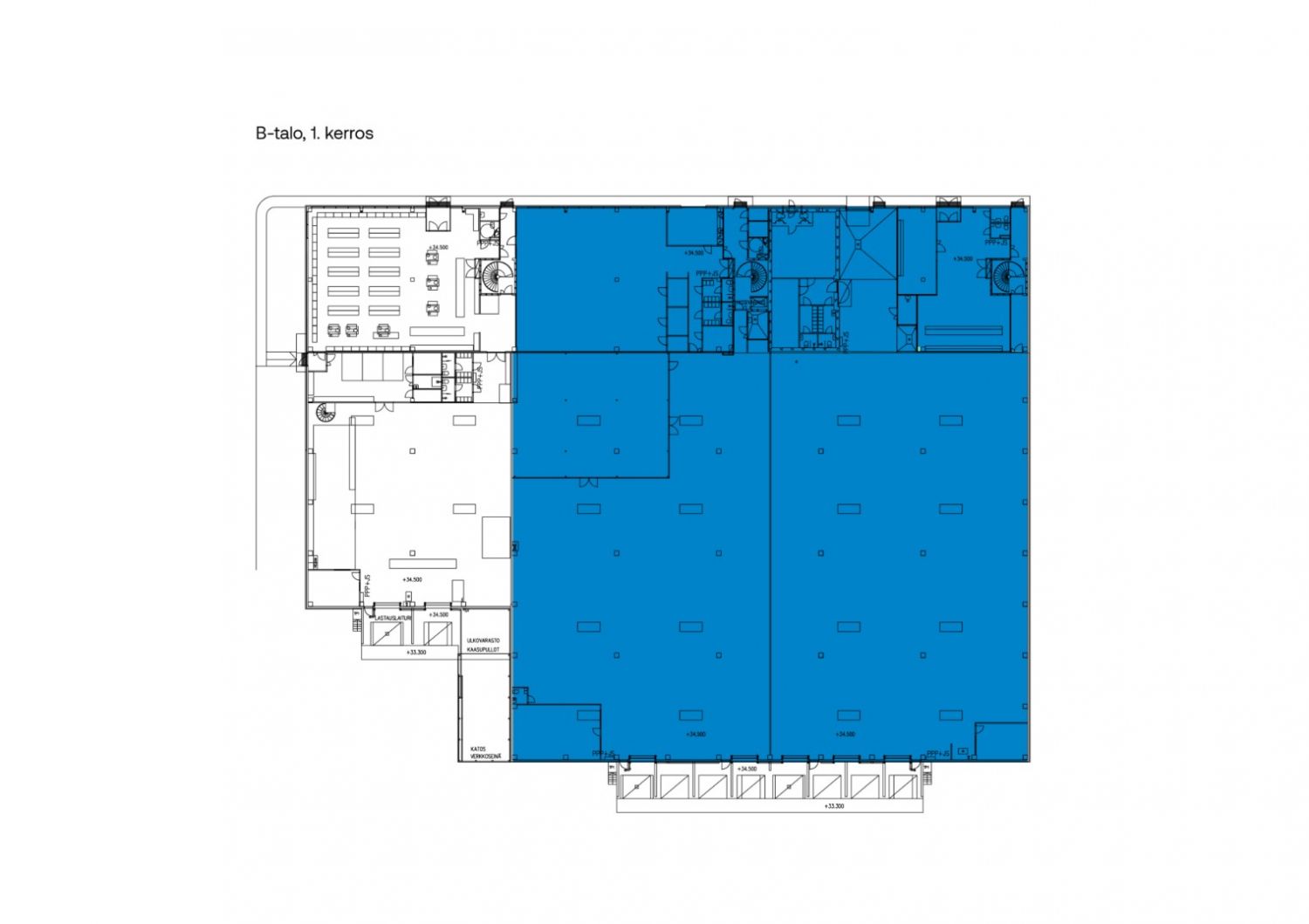
B-talo: varasto- ja toimistotilaa yhteensä 2040 m².
- 2. kerroksessa 424 m² edustavaa toimistotilaa ja 1. krs varasto 1 391 m² sekä sosiaalitilat, tilaan myös maantason nosto-ovi sekä toisella puolella lastauslaituri.
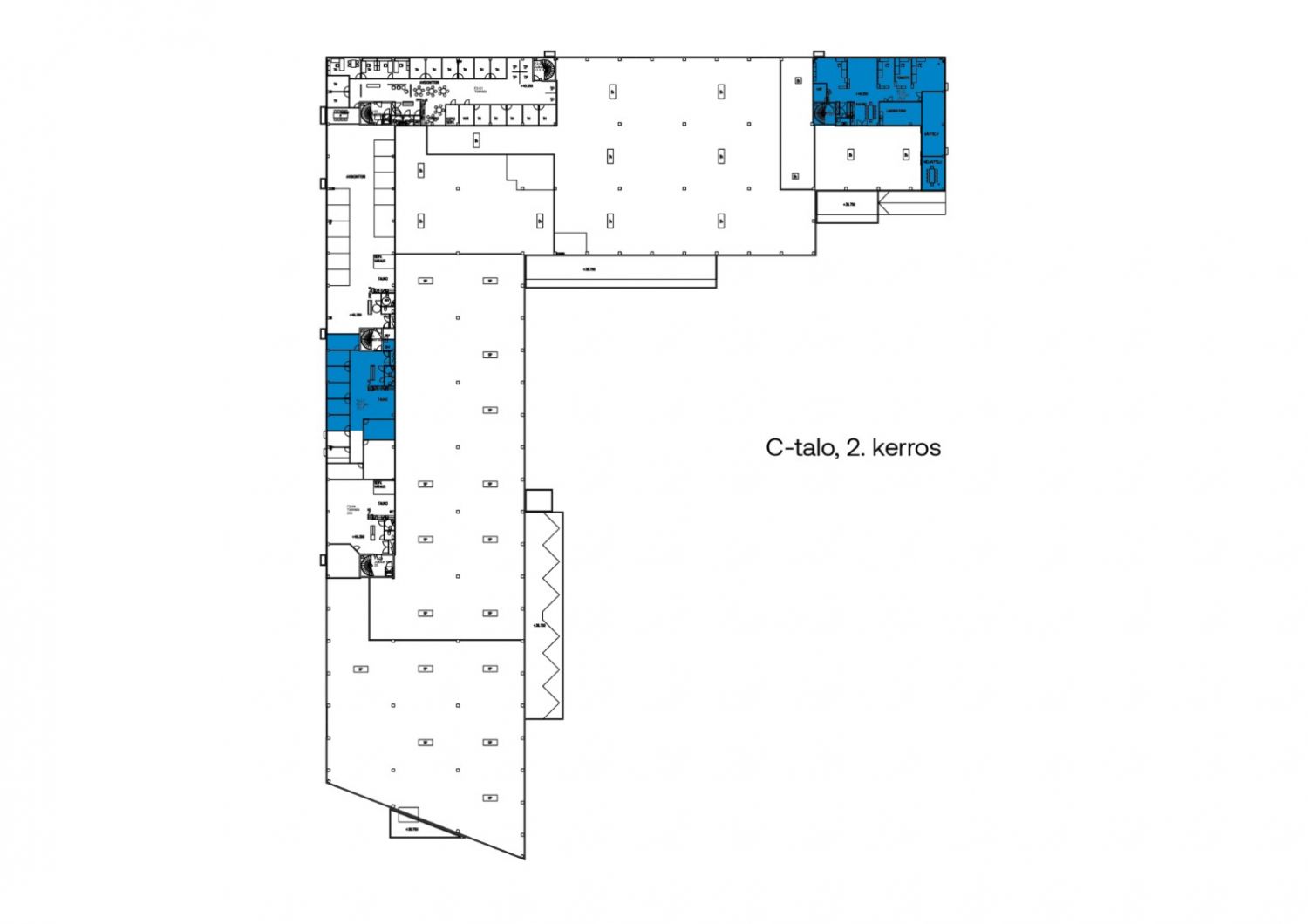
C-talo: varasto- ja toimistotilaa yhteensä 1631 m².
- Varasto 1177 m², jonka vapaa korkeus 8,9 m (osassa 5,7 m) ja jossa nosto-ovi lastauslaiturille.
- Toimisto 294 m², toisen kerroksen toimistotila - ei hissiä.
- Toimisto 160 m², toisen kerroksen toimistotila - ei hissiä. Yksi toimistohuone vuokrattu tilasta.
