Vuokrataan toimistotilat - Espoo
Miestentie 7, Keilaniemi, 02150 Espoo #10819839
Uutta toimistotilaa Espoon Keilaniemessä.
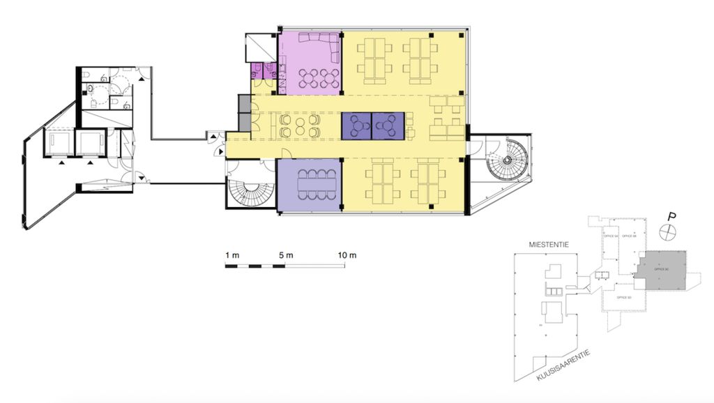
Tämä 292 m² toimistotila sijaitsee C-talon 5. kerroksessa. Tilassa on neuvotteluhuone, kaksi pienempää palaverihuonetta, lounge ja working cafe -alue sekä avotilaa. Näkymät Miestentielle ja merelle Kuusisaaren suuntaan. Kuvat ovat yleiskuvia kiinteistön tiloista. Vapautuminen 1.12.2025.
Swing Housen B-talo on 7-kerroksinen toimistotalo, jossa on vuokrattavaa toimistotilaa yhteensä 6200m2. Kerroskoko on noin 900 m2, ja se voidaan jakaa jopa neljälle käyttäjälle. Joustavat tilaratkaisut varmistavat sen, että tilat muuntautuvat yritystoiminnan mukaan. Vuokralaisille on tarjolla monipuolinen kattaus palveluita, kuten liikunta- ja hyvinvointipalveluja, toimisto- ja aulapalvelut, kokous- ja monitoimitiloja sekä ravintolapalvelut. Kiinteistö valmistui loppuvuodesta 2021.
Swingillä on erinomainen sijainti Keilaniemen ja Otaniemen risteyksessä. Metro ja poikittaisliikenteen bussipysäkit ovat vain muutaman minuutin kävelymatkan päässä. Autopaikkoja on mahdollista vuokrata ja pyöräilijöille on oma pyöräparkki.
Kysy lisää numerosta 044 723 4700 tai info@bref.fi. Palvelumme on tilanhakijoille ilmainen.
Hissi
Bureau Real Estate Finland Oy
Lars Sonckin kaari 16, 02600 Espoo
Näytä puhelinnumero
0447234700
Bureau Real Estate Finland Oy
https://www.bref.fi