Vuokrataan liiketilat - Espoo
Henttaan Puistokatu 4, Suurpelto, 02250 Espoo #10819820
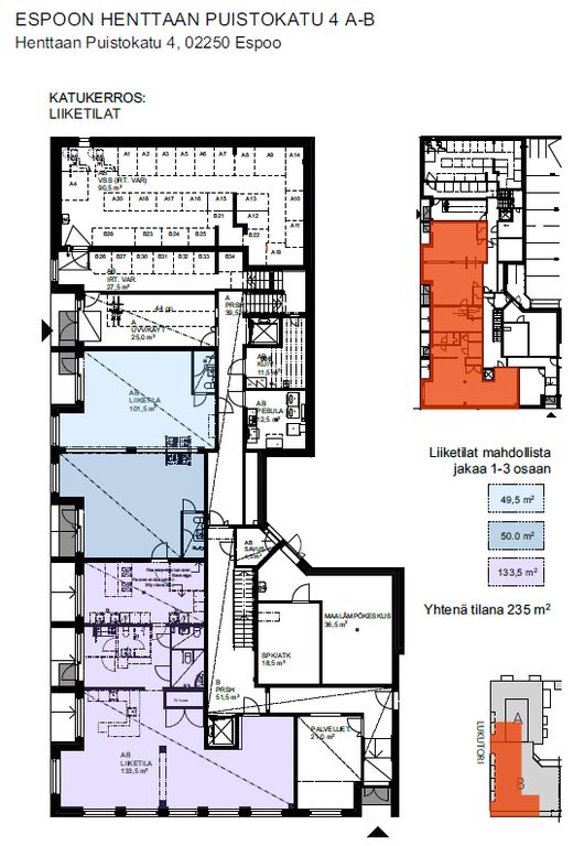
Liiketilaa asuintalon kivijalassa Espoon Suurpellossa.
Tämä 133,5 m² liiketila sijaitsee näkyvällä paikalla kiinteistön katutasossa. Tilan korkea huonekorkeus mahdollistaa monenlaisen käytön.
Henttaan puistokatu 4 sijaitsee Espoon kehittyvällä Suurpellon alueella. Puistomaisella alueella on paljon asutusta ja vieressä sijaitsee Kauppakeskus Suuris. Suurpeltoon on hyvät bussiyhteydet. Lyhyt ajomatka Turunväylälle ja Länsiväylälle.
Kysy lisää numerosta 050 589 7224 / rony.korsstrom@bref.fi tai 044 723 4700 / info@bref.fi. Palvelumme on tilanhakijoille ilmainen.
Bureau Real Estate Finland Oy
Lars Sonckin kaari 16, 02600 Espoo
Näytä puhelinnumero
0447234700
Bureau Real Estate Finland Oy
https://www.bref.fi