Vuokrataan toimistotilat - Helsinki
Töölönlahdenkatu 2, Keskusta, 00100 Helsinki #10819815
Rakennuksen kuvaus:
Sanomatalo sijaitsee aivan ydinkeskustassa, rautatieaseman vieressä ja Postitalon naapurissa. Yhteensä 12-kerroksinen näyttävä lasinen rakennus on valmistunut 1999 Sanoman toimituksille ja mm Helsingin Sanomien, Ilta-Sanomien ja Taloussanomien toimitukset sijaitsevat yläkerroksissa. Kaksi alinta kerrosta ovat yleisölle avoimia ja niistä on mahdollisuus vuokrata liike- ja näyttelytiloja. Alimmat kerrokset ovat luotu kohtaamispaikaksi, jossa kaupunkilaiset voi kokoontua kahvihetkiin tai ottaa osaa erilaisiin tapahtumiin.
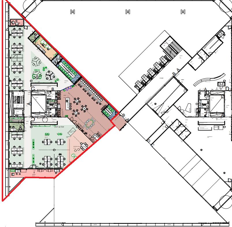
Tilan kuvaus:
Vuokrataan siistiä ja remontoitua toimistotilaa Sanomatalosta. Tästä viidennen kerroksen tilasta on upeat näkymät Oodin ja Musiikkitalon suuntaan.
Kerros: 5
