Vuokrataan toimistotilat - Helsinki
Fredrikinkatu 48, Helsinki, Suomi, Kamppi, 00100 Helsinki #10819752
Autotalokorttelissa sijaitsevassa kiinteistössä on kaikkiaan 12 kerrosta. Katutasossa on liiketilaa ja ylemmissä kerroksissa valoisaa, muuntojoustavaa toimistotilaa sekä neuvottelutiloja.
Osoite
Fredrikinkatu 48, Helsinki, Suomi, 00100 Helsinki
Tilatyyppi
Toimistotilaa
1250 m2
Kiinteistö
Helsingin Fredrikinkatu 48
Ympäristö
Metroasema: 100 m, Raitiovaunupysäkki: 200 m, Juna-asema: 800 m, Bussipysäkki: alle 100 m, Lentoasema: 19,4 km
Kulkuyhteydet
Valokuitu
Muuta
Tilat isommallekin yritykselle joka haluaa sijoittua keskelle Kamppia!
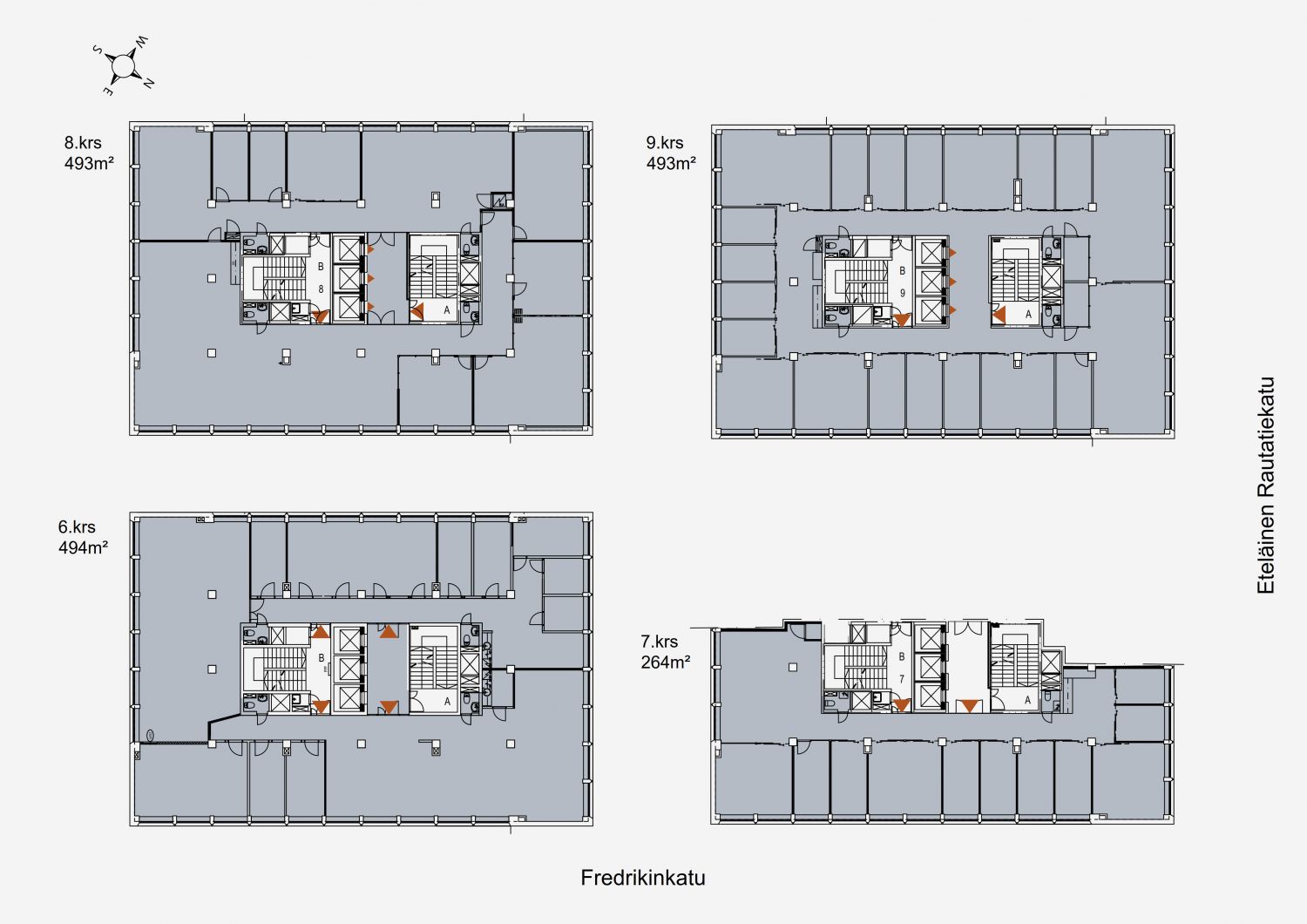
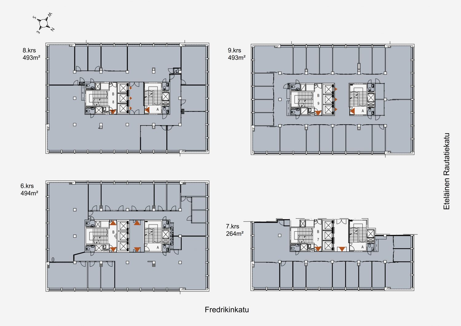
Vapautumassa noin puolet kerroksesta 7. (264m2) sekä ylemmät kerrokset 8. ja 9. kokonaan. Yhteensä neliöitä noin 1250 näkymät upeat ja tilat muuntojoustavia!
Helsingin Fredrikinkatu 48:n toimitilakiinteistö on valmistunut perinteikkääseen Autotalokortteliin vuonna 1962. Kiinteistö on käynyt läpi perusteellisen korjaushankkeen, jossa sen toimitiloja on avarrettu ja tehty avotiloiksi soveltuviksi.
Kampin autotalokortteli sijaitsee näkyvällä paikalla Kampin kauppakeskuksen vieressä. Kohteeseen on erinomaiset julkiset kulkuyhteydet metrolla, raitiovaunulla ja busseilla. Yksityisautoille on maanalaista pysäköintitilaa korttelin omassa autohallissa, jonne on suora hissiyhteys toimistokerroksista. Pyöräkellarissa turvallista säilytystilaa.
Autotalokorttelissa sijaitsevassa kiinteistössä on kaikkiaan 12 kerrosta. Katutasossa on liiketilaa ja ylemmissä kerroksissa valoisaa, muuntojoustavaa toimistotilaa sekä neuvottelutiloja.
Vapautumassa noin puolet kerroksesta 7. (264m2) sekä ylemmät kerrokset 8. ja 9. kokonaan. Yhteensä neliöitä noin 1250 näkymät upeat ja tilat muuntojoustavia!
Helsingin Fredrikinkatu 48:n toimitilakiinteistö on valmistunut perinteikkääseen Autotalokortteliin vuonna 1962. Kiinteistö on käynyt läpi perusteellisen korjaushankkeen, jossa sen toimitiloja on avarrettu ja tehty avotiloiksi soveltuviksi.
Kampin autotalokortteli sijaitsee näkyvällä paikalla Kampin kauppakeskuksen vieressä. Kohteeseen on erinomaiset julkiset kulkuyhteydet metrolla, raitiovaunulla ja busseilla. Yksityisautoille on maanalaista pysäköintitilaa korttelin omassa autohallissa, jonne on suora hissiyhteys toimistokerroksista. Pyöräkellarissa turvallista säilytystilaa.
Autotalokorttelissa sijaitsevassa kiinteistössä on kaikkiaan 12 kerrosta. Katutasossa on liiketilaa ja ylemmissä kerroksissa valoisaa, muuntojoustavaa toimistotilaa sekä neuvottelutiloja.
Vapautuu
Kysy
Rakennusvuosi
1962
Kerros
9
Energiatehokkuusluokka
F2007
Ota yhteyttä
LähiTapiola Kiinteistövarainhoito Oy
Heli Jalonen
Vuokrauspäällikkö
Näytä puhelinnumero
040 823 3490
Pyydä lisätietoa
