Vuokrataan toimistotilat - Espoo
Miestentie 7, Keilaniemi, 02150 Espoo #10819708
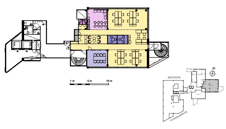
5. kerroksessa sijaiseva toimistotila, jossa neuvotteluhuone, kaksi pienempää palaverihuonetta, lounge ja working cafe -alue ja avotilaa. Näkymät Miestentielle ja merelle Kuusisaaren suuntaan.
Ensiluokkaista ja modernia toimitilaa uudiskohteessa Keilaniemessä. Swing House koostuu kahden toimistorakennuksen ja hotellin kokonaisuudesta. Uusi seitsenkerroksinen toimistotalo tarjoaa asiakkailleen korkealaatuiset palvelut ja työhyvinvointia tukevan työympäristön. Mahdollista vuokrata esimerkiksi kokonainen kerros omaan käyttöön, mutta kerrokset ovat myös jaettavissa neljälle käyttäjälle. Tilojen muunneltavuus on erinomainen.
Kiinteistössä on aulapalvelu, viihtyisä lounge, vastuullinen lounasravintola, kuntosali sekä liikunta- ja hyvinvointitilat. Työympäristön viihtyvyyttä lisäävät mm. vuorokausirytmiä noudatteleva valaistus, eri kerroksiin suunnitellut äänimaisemat sekä ilmaa puhdistava seitsemänkerroksinen viherseinä. Ohessa havainnollistavia kuvia kiinteistöstä.
Swing House sijaitsee erinomaisten kulkuyhteyksien varrella. Keilaniemen metroaseman sisäänkäynnille ja Raide-Jokerin pysäkille kävelymatka on 200 metriä. Autoileville on pysäköintipaikkoja sekä talon parkkihallissa että pihassa, ja työmatkapyöräilijöille oma pyöräparkki ja sinne johtava ajoramppi.
Lisätietoja numerosta 020 7290 710 ja lisää kohteita www.premises.fi .
Energialuokka B.Kerros: 5
CRE PREMISES
Puh. Näytä puhelinnumero 020 7290 710
Vantaankoskentie 14
01670 VANTAA
