Vuokrataan - Raisio
Raisionkaari 50, 21200 Raisio #10819644
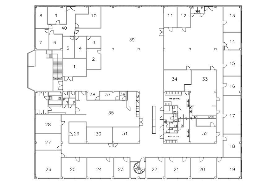
Vuokrattavana business tyylinen 116m2 toimistohuoneisto osoitteessa Raisionkaari 50, Raisio.
Oma tilakokonaisuus jossa aulan lisäksi 6 huonetta. Huoneiden määrä voi lisätä tarpeen mukaan.
Keittiö ja wc-tilat yhteiskäytössä.
Pohjakuvassa huoneet nro 5,6,7,8,9 ja 10.
Kysy lisätietoja.
Lisää toimisto tiloja www.rhg.fi
Kohteella ei ole lain edellyttämää energiatodistusta ja sen vuoksi energialuokka ei ole tiedossa
Osoite
Raisionkaari 50, 21200 Raisio
Vapautuu
Kysy
Huoneiden lukumäärä
1
Energiatehokkuusluokka
Ei lain edellyttämää energiatodistusta
Ota yhteyttä
RHG Real Estate
Hämeenkatu 2 B20, 20500 Turku
Näytä puhelinnumero
020 734 4020
Tony Rosenblad
Hallituksen puheenjohtaja
Näytä puhelinnumero
+358 50 551 5375
Pyydä lisätietoa
