Vuokrataan toimistotilat - Helsinki
Sörnäisten Rantatie 31, Sörnäinen, 00500 Helsinki #10819541
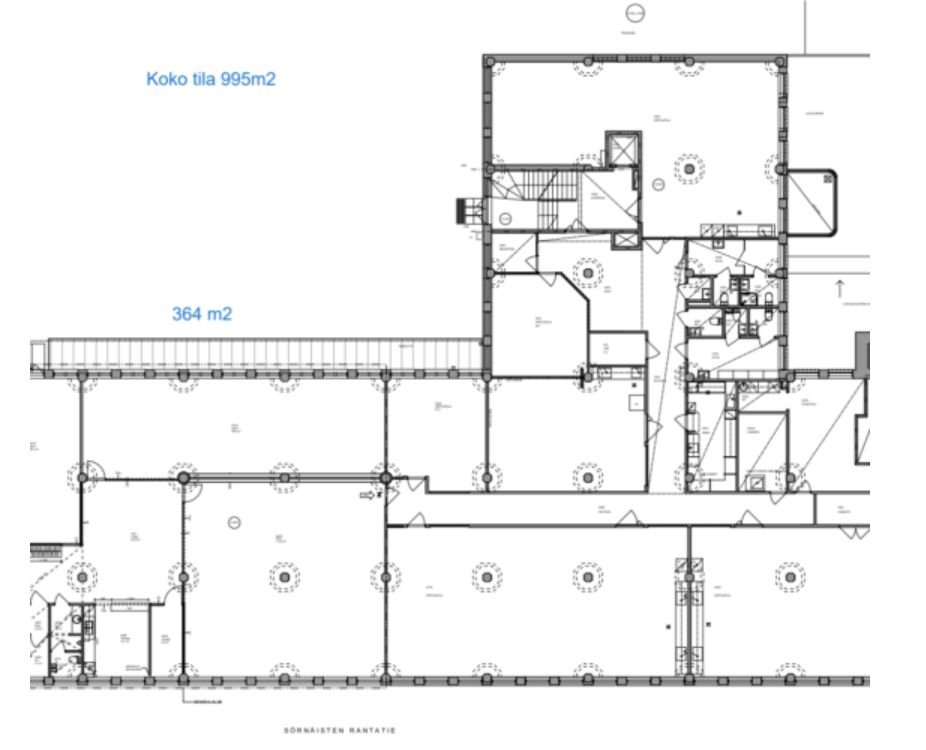
Sörnäisten rantatie 31:n kiinteistö tarjoaa monipuolista toimitilaa erilaisille toimijoille. Tilat soveltuvat erinomaisesti esimerkiksi liikunta-alan yrityksille ja toimijoille. Kiinteistö on viihtyisä ja toimiva.
Muuntautuviin tarpeisiin soveltuva rakennus on sopivasti rosoinen ja on omanlaisensa helmi. Kiinteistön ensimmäiset kerrokset ovat loft-henkisiä ja neljännen kerroksen ullakkotilat ovat valoisat lukuisten kattoikkunoiden ansiosta harmaanakin syyspäivänä. Kohde kannattaa kokea paikan päällä, koska sanat eivät sitä riitä kuvaamaan.
Sijainti on loistava lähellä Kauppakeskus REDI: n palveluita ja julkista liikennettä. Kiinteistöltä on sekä Sörnäisten että Kalasataman metroasemalle vain muutaman sadan metrin matka. Vuokralaisia palvelee kiinteistön vieressä sijaitseva pysäköintihalli.
Kiinteistössä on toteutettu mittava ja kaikenkattava sisäilmaremontti vuosina 2016 ja 2017. Kohteen julkisivu on suojeltu ja julkisivut ovat ikkunoineen kauttaaltaan peruskorjattu vuonna 2017. Kadun puoleinen tiilikatto on uusittu vuonna 2018.
Lisätietoja 020 7290 710 ja lisää kohteita premises.fi
Energialuokka F2014.Kerros: 2
CRE PREMISES
Puh. Näytä puhelinnumero 020 7290 710
Vantaankoskentie 14
01670 VANTAA
