Vuokrataan toimistotilat - Helsinki
Ruoholahdenkatu 8, Ruoholahti, 00180 Helsinki #10819531
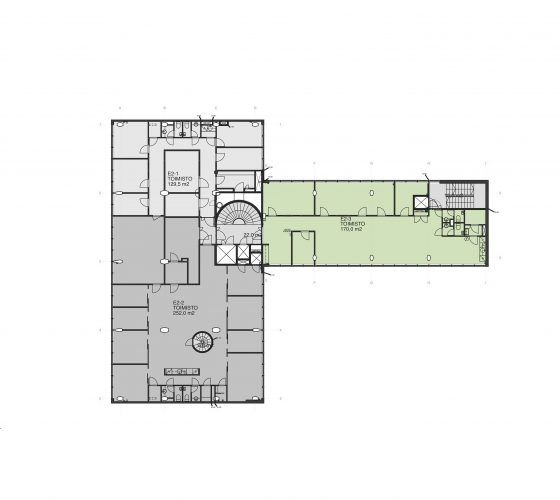
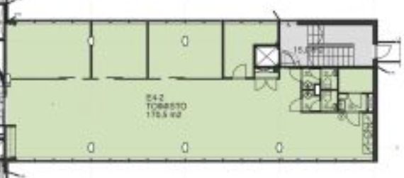
Vuokrattavissa 170 m2 toimistotila Helsingin Ruoholahdesta.
Kiinteistö Oy Ruoholahdenkatu 8 tarjoaa liike- ja toimistotilaa hyvällä paikalla Helsingin keskustan tuntumassa. Rakennus on valmistunut vuonna 1956 ja 1964. Tilat on kokonaan peruskorjattu vuonna 2005.
Kiinteistön tehokkaat toimistotilat ovat helposti muunneltavissa käyttäjien tarpeisiin sopiviksi niin avokonttoriksi kuin myös huonetoimistoksi. Rakennuksessa on koneellinen ilmanvaihto ja jäähdytys.
Ruoholahdenkatu 8 sijaitsee hyvien liikenneyhteyksien varrella lyhyen kävelymatkan päässä Kampin metroasemalta. Rakennuksen sisäpihalla ja kellarissa on yhteensä noin 50 pysäköintipaikkaa.
LISÄTIETOJA numerosta 020 7290 710. Lisää kohteita osoitteessa www.premises.fi.
Kohteella ei ole lain edellyttämää energiatodistusta.Kerros: 2
CRE PREMISES
Puh. Näytä puhelinnumero 020 7290 710
Vantaankoskentie 14
01670 VANTAA
