Vuokrataan - Askola
Teollisuustie 2, Askola, 07230 Askola #10819523
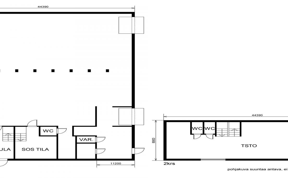
Askolassa monipuolista tuotanto-, varasto-, toimistotilaa yht. 2250 m2. Tilassa toiminut aiemmin kalustetehdas. Hallin koko n 1500 m2, korkeus n 4,4 m, 2 x nosto-ovi n 4,3 x 4,2 m. 1. krs matalaa tuotantotilaa n 2,9 m sekä sos.tilat. 2. krs toimistoa.
Edullinen lämmityskulu vesi-ilmalämpöpumpuilla ja öljy varalla.
Tämä on pääomavuokraus (3,65 €/m2). Lisäksi kulut maksaa vuokralainen esim sähkö, lämpö, vesi, puhtaanapito.
Osoite
Teollisuustie 2, 07230 Askola
Vuokra
8212.50 e/kk
Vapautuu
Kysy
Huoneiden lukumäärä
1
Energiatehokkuusluokka
Ei lain edellyttämää energiatodistusta
Ota yhteyttä
RHG Real Estate
Hämeenkatu 2 B20, 20500 Turku
Näytä puhelinnumero
020 734 4020
Risto Taimela
Näytä puhelinnumero
0400 674 900
Pyydä lisätietoa
