Vuokrataan varastotilat - Helsinki
Valokaari 10, Suutarila, 00750 Helsinki #10819513
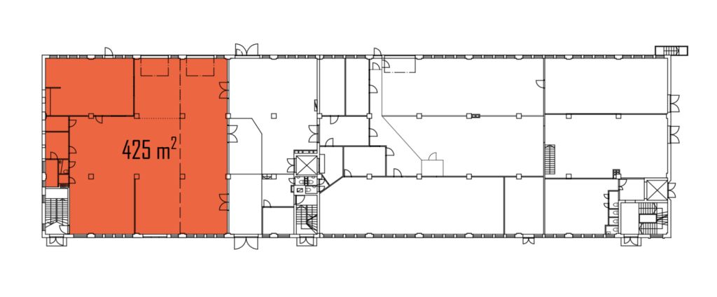
Varastotilaa Helsingin Suutarilassa.
Tämä 425 m² läpiajettava tuotanto-/varastotila sijaitsee kiinteistön katutasossa. Tila ei sovellu autopesulaksi. Tilan korkeus on noin 3 m, ja sinne johtaa pihalta kaksi omaa nosto-ovea ja taitto-ovi. Varastossa on oma keittiö. Pohjapiirrokseen katkoviivalla merkitty kevyt väliseinä voidaan purkaa tarvittaessa.
Valokaari 10 on varasto-, tuotanto- ja toimistokiinteistö, joka sijaitsee lähellä Kehä III:sta Suutarilassa. Alueella on monipuolisesti palveluja ja hyvät kulkuyhteydet. Kiinteistön pihalla on hyvin pysäköintitilaa.
Kysy lisää numerosta 044 723 4700 tai info@bref.fi. Palvelumme on tilanhakijoille ilmainen.
Bureau Real Estate Finland Oy
Lars Sonckin kaari 16, 02600 Espoo
Näytä puhelinnumero
0447234700
Bureau Real Estate Finland Oy
https://www.bref.fi