Vuokrataan varastotilat - Helsinki
Hankasuontie 9, Konala, 00390 Helsinki #10819510
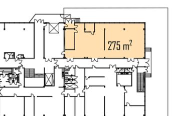
Varasto- ja toimistotilaa Helsingin Konalassa.
Tämä 275 m² toimitila sijaitsee kiinteistön 1. kerroksessa. Väliseinä jakaa tilan noin puoliksi toimistolle ja varastolle. Toimistossa on oma keittiöpiste, wc-tilat sijaitsevat käytävällä. Varastoon on kulku suoraan lastauslaiturilta. Ei sisäänajomahdollisuutta. Vapautuminen 1.8.2025.
Pienteollisuustoimintaan sopiva kiinteistö on rakennettu vuonna 1969 ja peruskorjattu vuosien 2009-2010 aikana. Rakennuksessa on varasto-, tuotanto- ja toimistotiloja kahdessa kerroksessa, koulutustiloja ja matalaa varastotilaa kellarikerroksessa. Kiinteistössä on lastauslaituri ja tavarahissi, jonka kantavuus on 3500kg.
Kysy lisää numerosta 044 723 4700 tai info@bref.fi. Palvelumme on tilanhakijoille ilmainen.
Bureau Real Estate Finland Oy
Lars Sonckin kaari 16, 02600 Espoo
Näytä puhelinnumero
0447234700
Bureau Real Estate Finland Oy
https://www.bref.fi