Vuokrataan toimistotilat, tuotantotilat, varastotilat, muut tilat - Askola
Teollisuustie 2, 07230 Askola #10819473
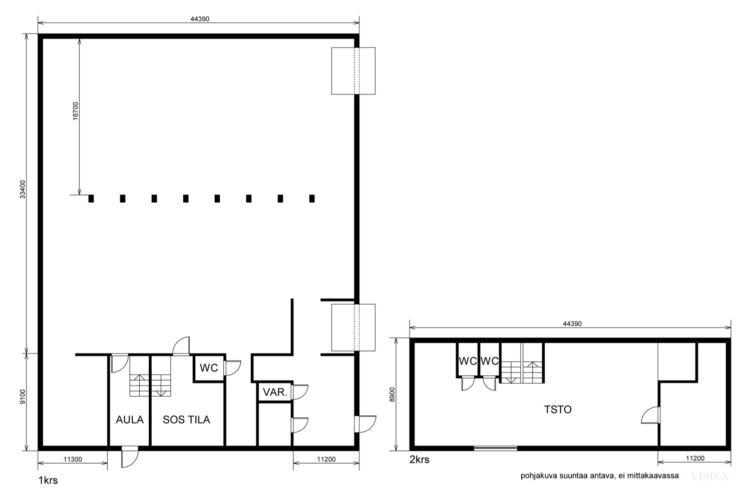
Varasto-/tuotanto-/toimistotilaa
Osoite
Teollisuustie 2, 07230 Askola
Tilatyyppi
Toimistotilaa
390 m2
Tuotantotilaa
1500 m2
Varastotilaa
1500 m2
Muuta tilaa
360 m2
Yhteensä
2250 m2
Tilajako
Jaettavissa
Vuokra
8213 eur/kk + alv
Muuta
Monipuolista tuotantotilaa. Kiinteistössä on aikaisemmin toiminut kalustetehdas.
Edullinen lämmityskulu vewi-ilmalämpöpumpuilla ja öljy varalla koville pakkasille.
Hallissa 2 nosto-ovea noin 4.3x4.2, toinen lastauslaituri, toinen ovi sisään asettava. Hallin koko n.1500m2 ja korkeus n.4.4m.
1.kerroksen matalan tilan korkeus noin 2,9m, jossa sijaisevat sos tilat.
Vuokra on pääoma vuokra, kulut maksaa vuokralainen, (sähkö, lämpö, vesi, puhtaanapito).
Mahdollisuus jakaa useammalle käyttäjälle.
Vapautuu sopimuksen mukaan.
Sovi esittely 040 5588 226 tai tapio@realsale.fi
Edullinen lämmityskulu vewi-ilmalämpöpumpuilla ja öljy varalla koville pakkasille.
Hallissa 2 nosto-ovea noin 4.3x4.2, toinen lastauslaituri, toinen ovi sisään asettava. Hallin koko n.1500m2 ja korkeus n.4.4m.
1.kerroksen matalan tilan korkeus noin 2,9m, jossa sijaisevat sos tilat.
Vuokra on pääoma vuokra, kulut maksaa vuokralainen, (sähkö, lämpö, vesi, puhtaanapito).
Mahdollisuus jakaa useammalle käyttäjälle.
Vapautuu sopimuksen mukaan.
Sovi esittely 040 5588 226 tai tapio@realsale.fi
Vapautuu
sopimuksen mukaan
Jaettavissa
Ota yhteyttä
Pyydä lisätietoa
