Vuokrataan toimistotilat - Helsinki
Elimäenkatu 30, Vallila, 00520 Helsinki #10819446
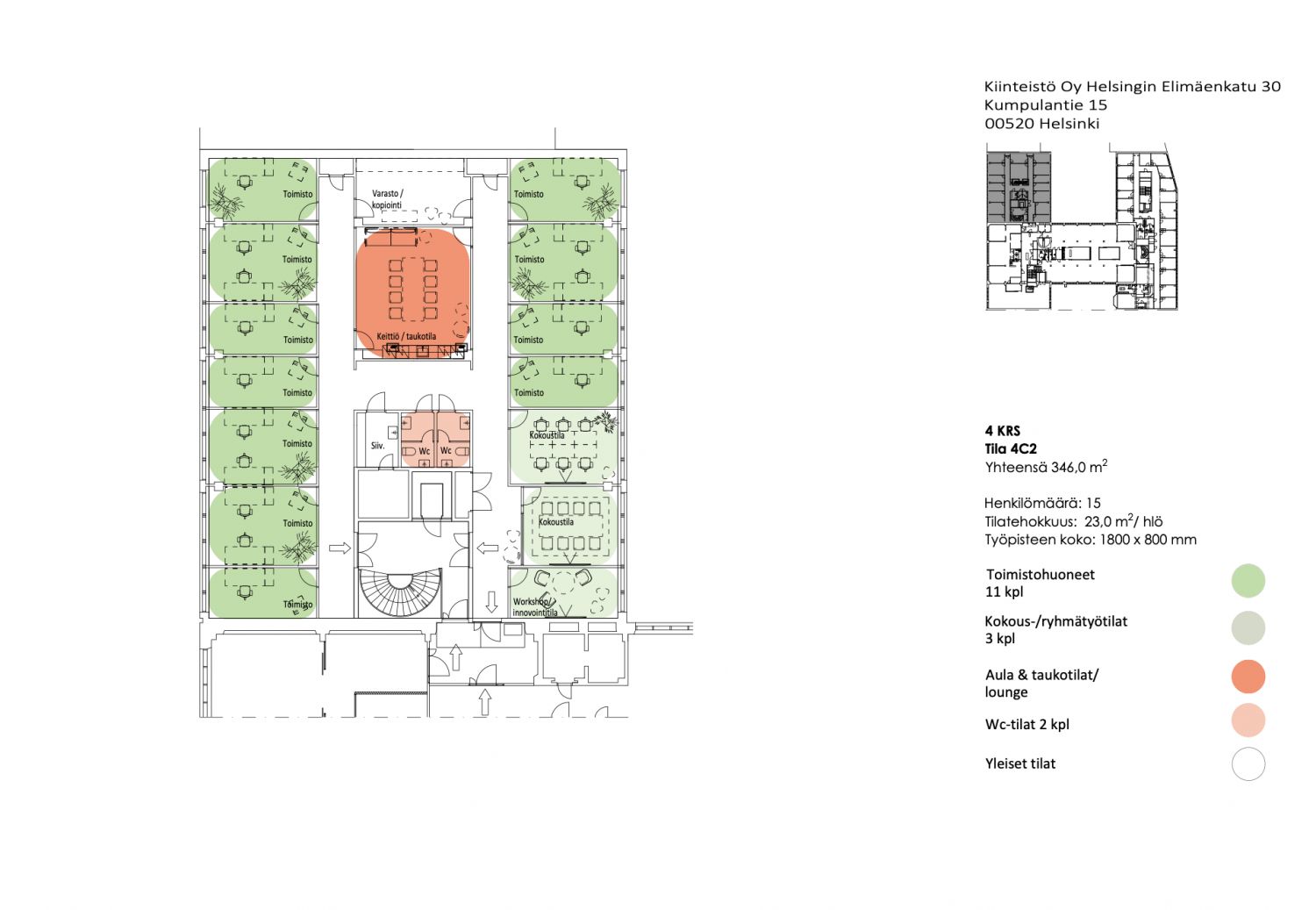
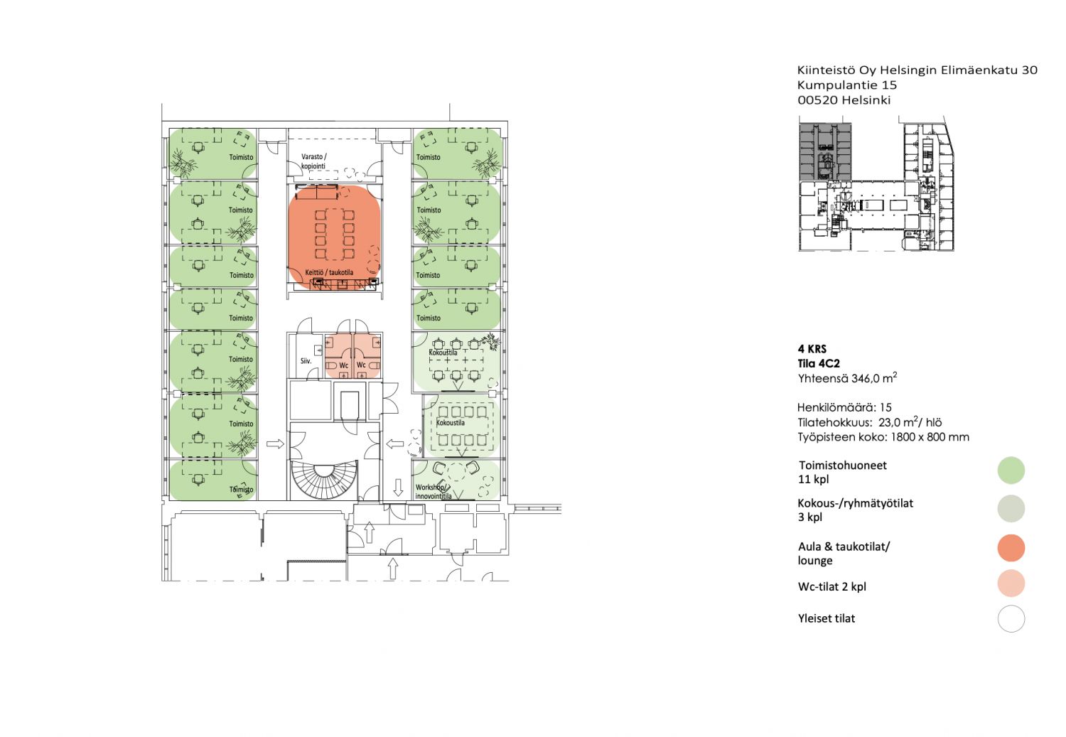
Vuokrataan 4.kerroksen toimistotila. Tila on mahdollista muokata vastaamaan asiakkaan tarpeita.
Elimäenkatu 30 toimitilat ovat viihtyisiä, teollisuushenkisiä ja hiljattain uudistettuja. Toimistot ovat muokattavissa tarpeiden mukaan. Lähistöllä on useita lounasravintoloita.
Kiinteistö sijaitsee kehittyvällä alueella, johon Helsinki panostaa lähitulevaisuudessa paljon. Jo nyt alue muodostaa merkittävän liiketoiminnan keskittymän. Kiinteistöstä on loistavat kulkuyhteydet keskustaan ja Pasilan juna-asemalle.
Lisätietoja 020 7290 710 ja lisää kohteita premises.fi
Kohteella ei lain edellyttämää energiatodistusta tai energialuokka ei tiedossa.Kerros: 4
CRE PREMISES
Puh. Näytä puhelinnumero 020 7290 710
Vantaankoskentie 14
01670 VANTAA
