Vuokrataan toimistotilat, näyttelytilat - Helsinki
Kalevankatu 18, Kamppi, 00100 Helsinki #10819442
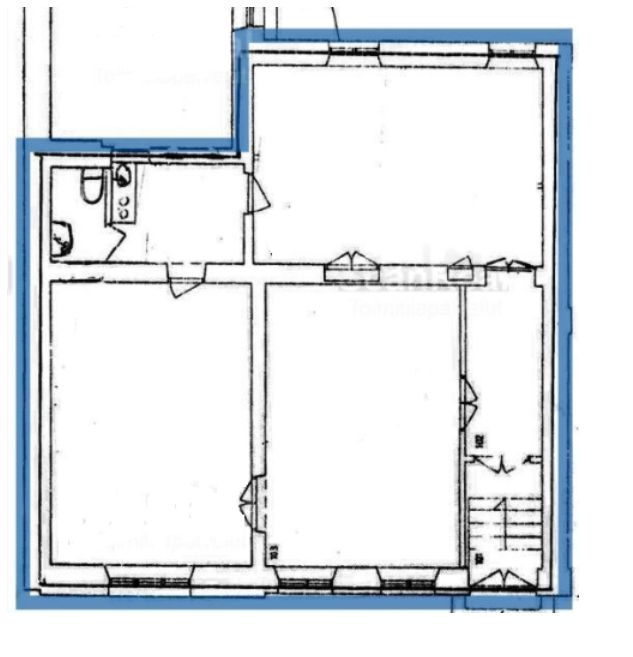
KALEVANKATU 18 - toimist-/näyttelytila 120m2
Tähän kauniiseen toimistotilaan on kulku suoraan kadulta, joten se soveltuu hyvin myös showroom-käyttöön.
Korkeat huoneet, sauvaparketti ja peiliovet antavat tilalle tyylikkään ilmeen.
Tilakokonaisuuteen kuuluu halli, kolme isoa huonetta, tilava keittiö ja WC.
Kohde soveltuu erinomaisesti mm. suunnittelutoimistoille, maahantuontiyrityksille, agentuuriliikkeille ja sisustus-alan toimijoille.
Myös ALV:ton toiminta mahdollista.
Lisätiedot ja kohdenäytöt: p. 040 7070 321 / HeikkiKerros: katu
Osoite
Kalevankatu 18, 00100 Helsinki
Tilatyyppi
Toimistotilaa
120 m2
Näyttelytilaa
120 m2
Yhteensä
120 m2
Vuokra
3120 eur
Kulkuyhteydet
KAMPIN KESKUS: 500 m /
RAUTATIEASEMA: 800 m /
RAITIOVAUNUPYSÄKKI: 250 m
RAUTATIEASEMA: 800 m /
RAITIOVAUNUPYSÄKKI: 250 m
Ota yhteyttä
CRE PREMISES
Puh. Näytä puhelinnumero 020 7290 710
Vantaankoskentie 14
01670 VANTAA
Pyydä lisätietoa
