Vuokrataan toimistotilat - Helsinki
Fredrikinkatu 34, Kamppi, 00100 Helsinki #10819441
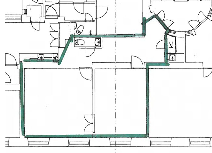
FREDRIKINKATU 34 - toimistotila 56m2
Tässä 4. kerroksen toimistotilassa on korkeat huoneet ja palkkijäähdytys.
Kaksi isoa huonetta joiden välissä tupla-peiliovet, eteistilassa pieni keittiösyvennys ja WC.
Kaunis porrashuone, jossa ala-aulassa sähköinen opastetaulu.
Myös ALV:ton toiminta mahdollinen.
Lisätiedot ja kohdenäytöt: p. 040 7070 321 / HeikkiKerros: 4
Osoite
Fredrikinkatu 34, 00100 Helsinki
Tilatyyppi
Toimistotilaa
56 m2
Kulkuyhteydet
Metro-Kamppi: 400 m
Raitiovaunupysäkki: 300 m (1/1T/2/3/6)
Raitiovaunupysäkki: 350 m (7/7H/9/9H/9N)
Linja-autoasema: 550 m
Linja-autopysäkki: 190 m (20/30)
EuroPark P-Autotalo 500 m
EuroPark P-Simonkenttä 600 m
EuroPark P-Kamppi 700 m
Raitiovaunupysäkki: 300 m (1/1T/2/3/6)
Raitiovaunupysäkki: 350 m (7/7H/9/9H/9N)
Linja-autoasema: 550 m
Linja-autopysäkki: 190 m (20/30)
EuroPark P-Autotalo 500 m
EuroPark P-Simonkenttä 600 m
EuroPark P-Kamppi 700 m
Ota yhteyttä
CRE PREMISES
Puh. Näytä puhelinnumero 020 7290 710
Vantaankoskentie 14
01670 VANTAA
Pyydä lisätietoa
