Vuokrataan toimistotilat - Helsinki
Kumpulantie 5, Vallila, 00520 Helsinki #10819414
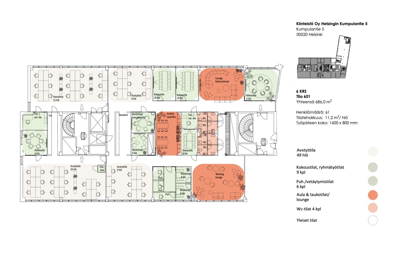
Vuokrattavana toimistotila 6. kerroksesta, Vallilasta, 10 minuutin kävelymatkan päästä Pasilan asemalta.
Talon palveluihin kuuluu mm. oma henkilöstöravintola, aulapalvelu, vuokrattavat kokous- ja neuvottelutilat sekä saunaosasto. Parkkipaikkoja löytyy sekä ulkoa että parkkihallista.
Lisätietoja: p. 020 7290 710. Lisää kohteita osoitteessa premises.fi.
Kohteella ei ole lain edellyttämää energiatodistusta tai energialuokka ei tiedossa.Kerros: 6
Osoite
Kumpulantie 5, 00520 Helsinki
Tilatyyppi
Toimistotilaa
686 m2
Kulkuyhteydet
Erinomaiset julkiset liikenneyhteydet.
Ota yhteyttä
CRE PREMISES
Puh. Näytä puhelinnumero 020 7290 710
Vantaankoskentie 14
01670 VANTAA
Pyydä lisätietoa
