Vuokrataan toimistotilat - Helsinki
Elimäenkatu 28, Vallila, 00520 Helsinki #10819389
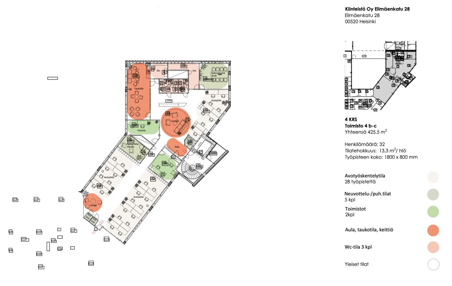
Vuokrataan siisti ja tilava neljännen kerroksen toimistotila Helsingin Vallilassa.
Tämän teollisuustunnelmaisen kiinteistön toimitilat ovat hyväkuntoisia ja tehokkaita tilaratkaisuiltaan. Kiinteistössä palvelee lounasravintola ja vuokralaisten käytettävissä on tavarahissi.
Helposti lähestyttävä kohde sijoittuu lähelle vilkkaasti liikennöityä Mäkelänkatua ja Pasilan asemaa. Elimäenkadulta pääsee sutjakasti niin Tuusulanväylän kuin Lahden moottoritien alkuun. Raitiovaunu sekä bussi tuovat työmatkalaiset talon välittömään läheisyyteen. Pyöräilijöille on omat suihkutilat. Kiinteistön kerroksista on yhteys kiinteistön omiin pysäköintitiloihin.
Lisätietoja 020 2790 710, lisää kohteita www.premises.fi
Kohteella ei ole lain edellyttämää energiatodistusta tai energialuokka ei tiedossa.Kerros: 4
CRE PREMISES
Puh. Näytä puhelinnumero 020 7290 710
Vantaankoskentie 14
01670 VANTAA
