Vuokrataan toimistotilat - Helsinki
Kumpulantie 5, Vallila, 00520 Helsinki #10819384
Vallilan Pikseli on toimistotalo joka sijaitsee keskeisellä paikalla Pasilassa. Kiinteistössä on lounasravintola, aulapalvelu, saunaosasto sekä neuvotteluhuoneita vuokrattavana.
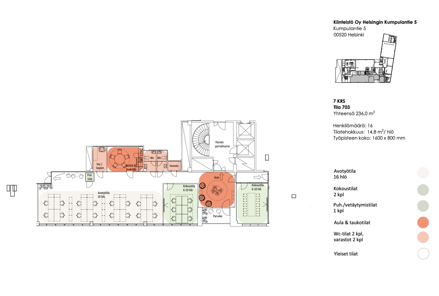
Kiinteistön 7. kerroksessa on vuokrattavissa 236m2 toimistotila, 3 huonetta + avotila, keittiö, 2 x wc sekä parveke.
Lisätietoja: p. 020 7290 710. Lisää kohteita osoitteessa premises.fi.
Kohteella ei ole lain edellyttämää energiatodistusta.Kerros: 7
Osoite
Kumpulantie 5, 00520 Helsinki
Tilatyyppi
Toimistotilaa
236 m2
Kulkuyhteydet
Erinomaiset julkiset liikenneyhteydet.
Liitetiedostot
Ota yhteyttä
CRE PREMISES
Puh. Näytä puhelinnumero 020 7290 710
Vantaankoskentie 14
01670 VANTAA
Pyydä lisätietoa
