Vuokrataan liiketilat - Jyväskylä
Tourukeskus, Vapaaherrantie 2, Tourula, 40100 Jyväskylä #10819369
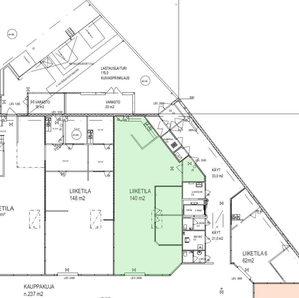
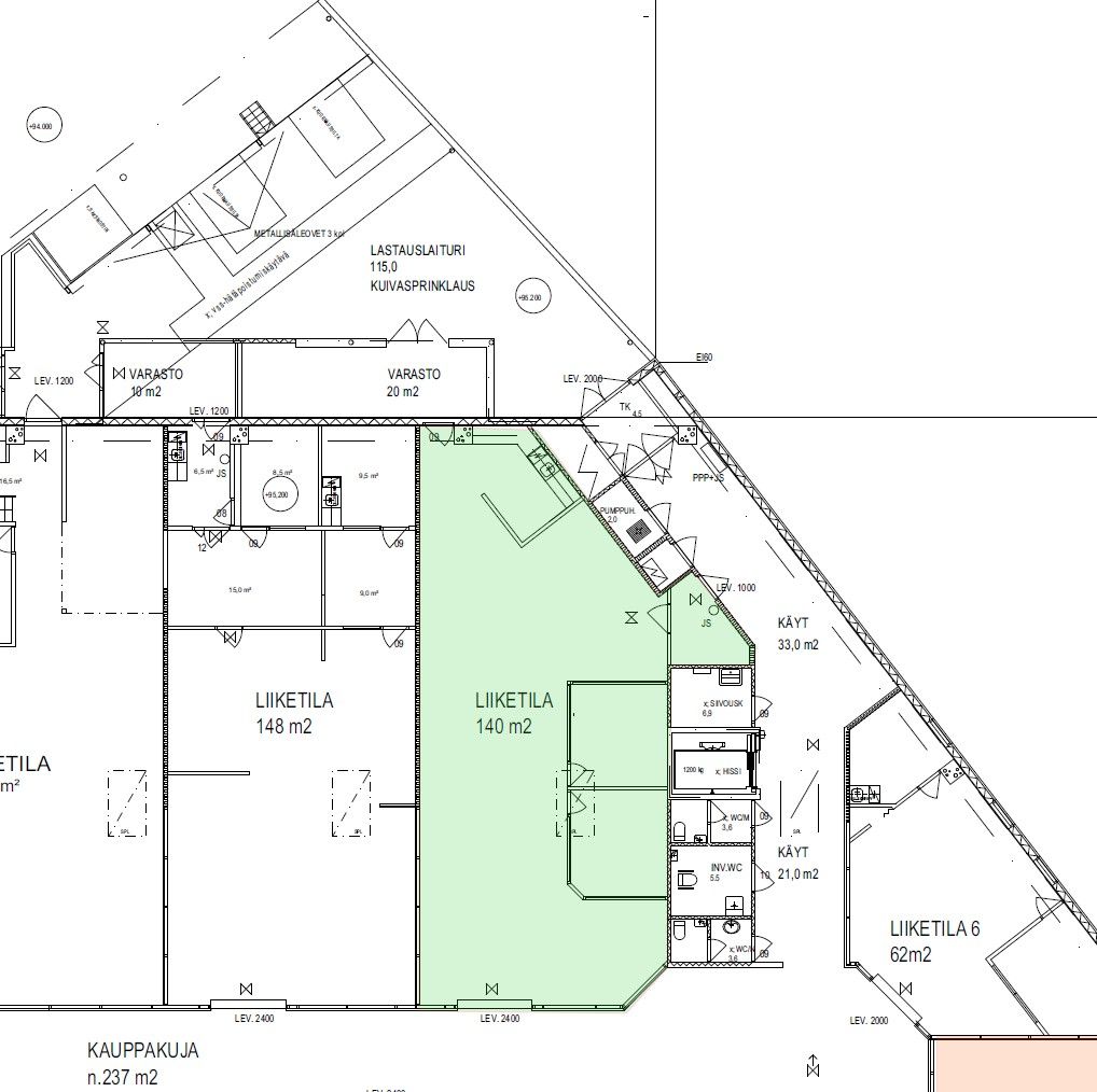
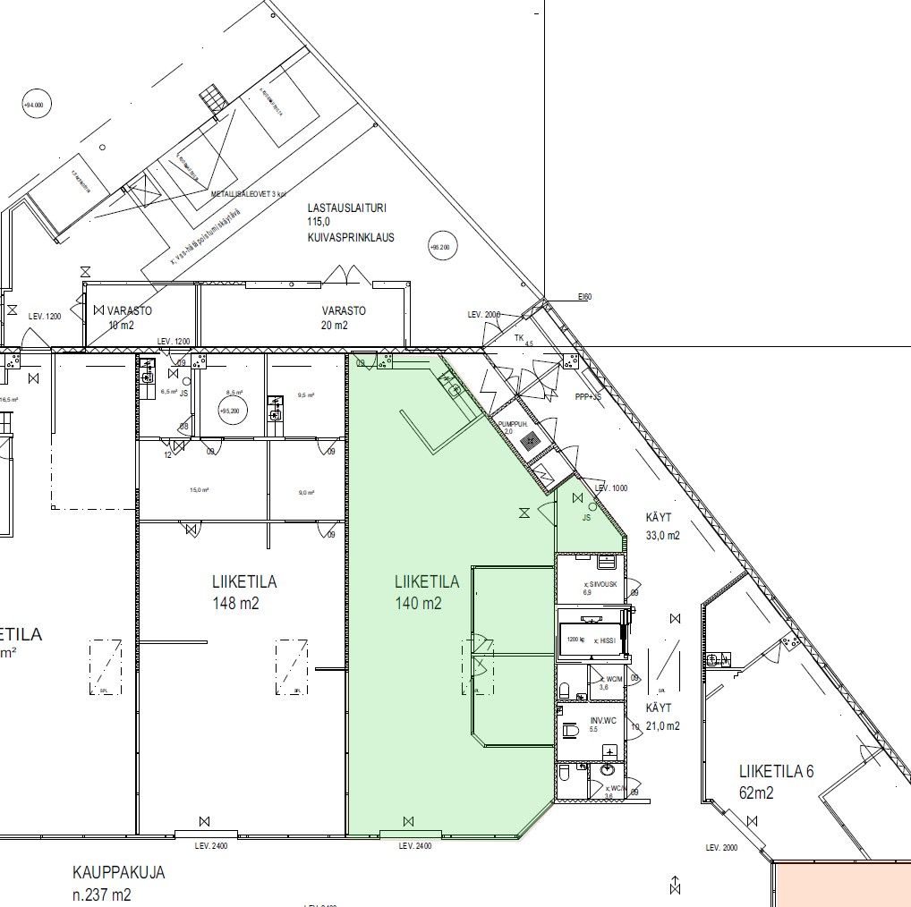
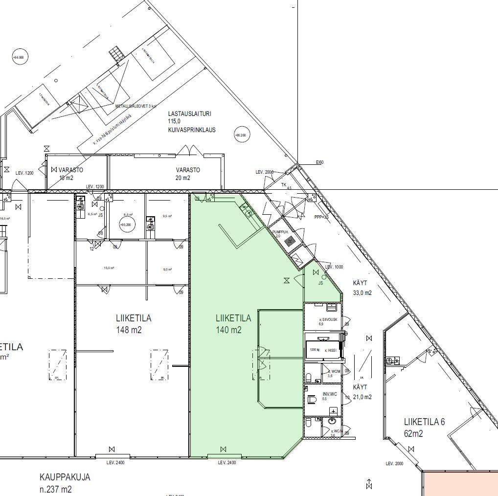
Vuokrataan liiketilaa Tourukeskuksesta
Osoite
Vapaaherrantie 2, 40100 Jyväskylä
Tilatyyppi
Liiketilaa
140 m2
Muuta
Vuokrataan 140 m2 heti vapaa liiketila Tourukeskuksen kauppakujan varrella. Hyvä yhteys lastauslaiturille. Vuokralaisia palvelee yhteiskäyttöiset suihku- ja pukuhuonetilat sekä lounasravintola. Tourukeskus sijaitsee logistillisesti hyvien liikenneyhteyksien varrella. Soita ja kysy lisätietoja!
Vapautuu
Kysy
Kerros
1
Ota yhteyttä
Pyydä lisätietoa
