Vuokrataan liiketilat - Jyväskylä
Kiinteistö Oy Kauppakatu 32, Kauppakatu 32, Jyväskylä, 40100 Jyväskylä #10819368
Vuokrataan liiketilaa loistavalta paikalta
Osoite
Kauppakatu 32, 40100 Jyväskylä
Tilatyyppi
Liiketilaa
3493 m2
Muuta
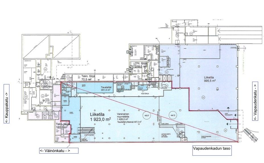
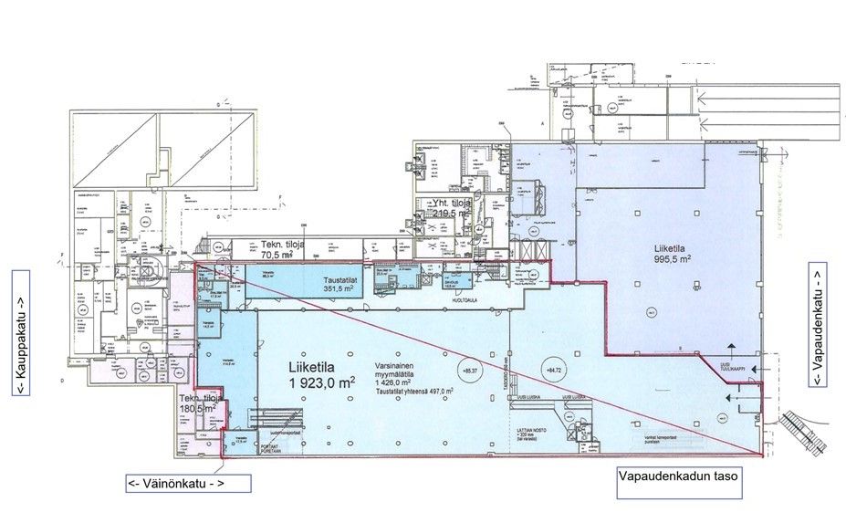
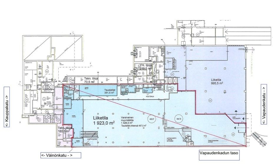
Vuokrataan Jyväskylän ydinkeskustasta n. 3493 m2 liike-/myymälätila kahdesta kerroksessa jossa hyvin näyteikkunatilaa Väinönkadulle. Katutasossa liiketilaa on yhteensä n. 1570 m2 ja alemmassa kerroksessa liiketilaa on n. 1923 m2, jonne yhteys liukuportaiden kautta tai Vapaudenkadun puolelta katutasosta. Tilat voidaan vuokrata yhtenä kokonaisuutena, mutta tarvittaessa niitä voidaan myös lohkoa pienempiin osiin. Soita, kysy lisätietoja ja sovi esittely!
Vapautuu
Kysy
Kerros
1
Ota yhteyttä
Infonia Oy
Kauppakatu 18 A, 40100 Jyväskylä
Näytä puhelinnumero
+358 407579731
Mikko Hirvi
Näytä puhelinnumero
+358 407579731
Pyydä lisätietoa
